Colonica da ristrutturare a Montaione
In posizione collinare con assoluta privacy e quiete, bella proprietà con tipica casa colonica in pietra, annesso da ricostruire e 4 ettari di terreno con vigneto, oliveto, seminativo e bosco.
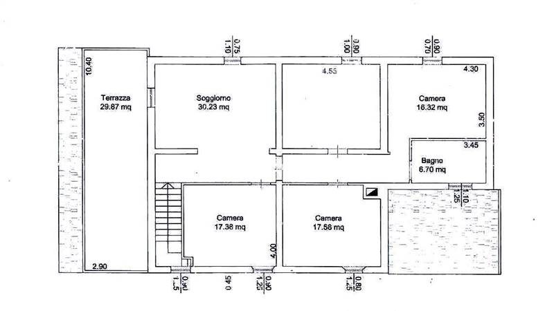
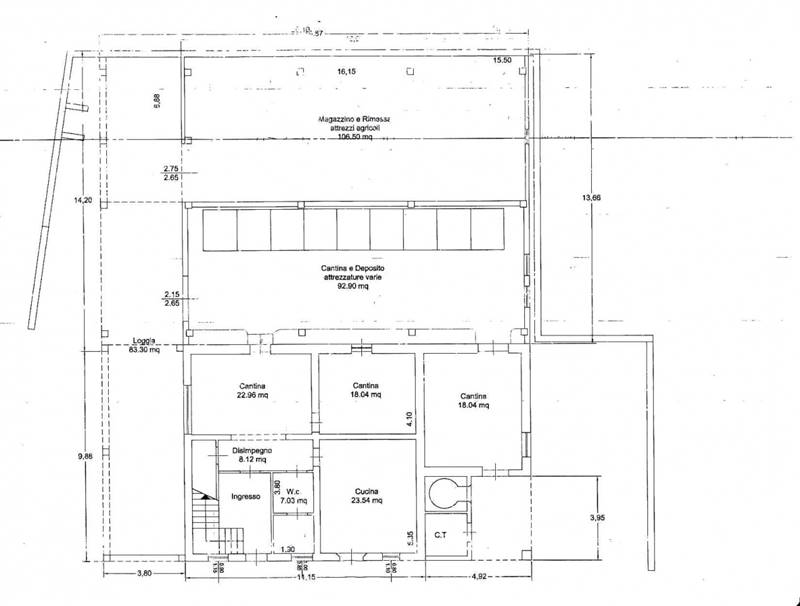
La colonica è strutturata su 2 livelli (piano terra e primo), misura circa 550 mq ed è così suddivisa:
- Abitazione su 2 piani di mq 160 circa con ingresso, cucina, wc, disimpegno e magazzino al piano terra, soggiorno con terrazza di 30 mq, 4 camere e bagno al piano primo;
- Cantina e rimessa attrezzi agricoli di mq 200 complessivi, grande loggiato di 83 mq, 3 magazzini/cantine, ripostiglio, loggiato di 20 mq con forno, tutti ubicati al piano terra.
Volumi di recupero di un Annesso indipendente, di circa 80 mq complessivi.
La colonica è da ristrutturare, può essere suddivisa facilmente in più abitazioni indipendenti. La proprietà è collegata alla rete idrica pubblica e alla rete elettrica.
Terreno Agricolo di 4 ettari con 1 Ha circa a vigneto Chianti di recente impianto, i restanti ettari con oliveto, seminativo e bosco. Possibilità di acquistare solo una parte di terreno da adibire a giardino.
Dove si trova
Informazioni generali
Accessori
Richiesta informazioni all'agenzia
Richiedi informazioni all'agenzia
