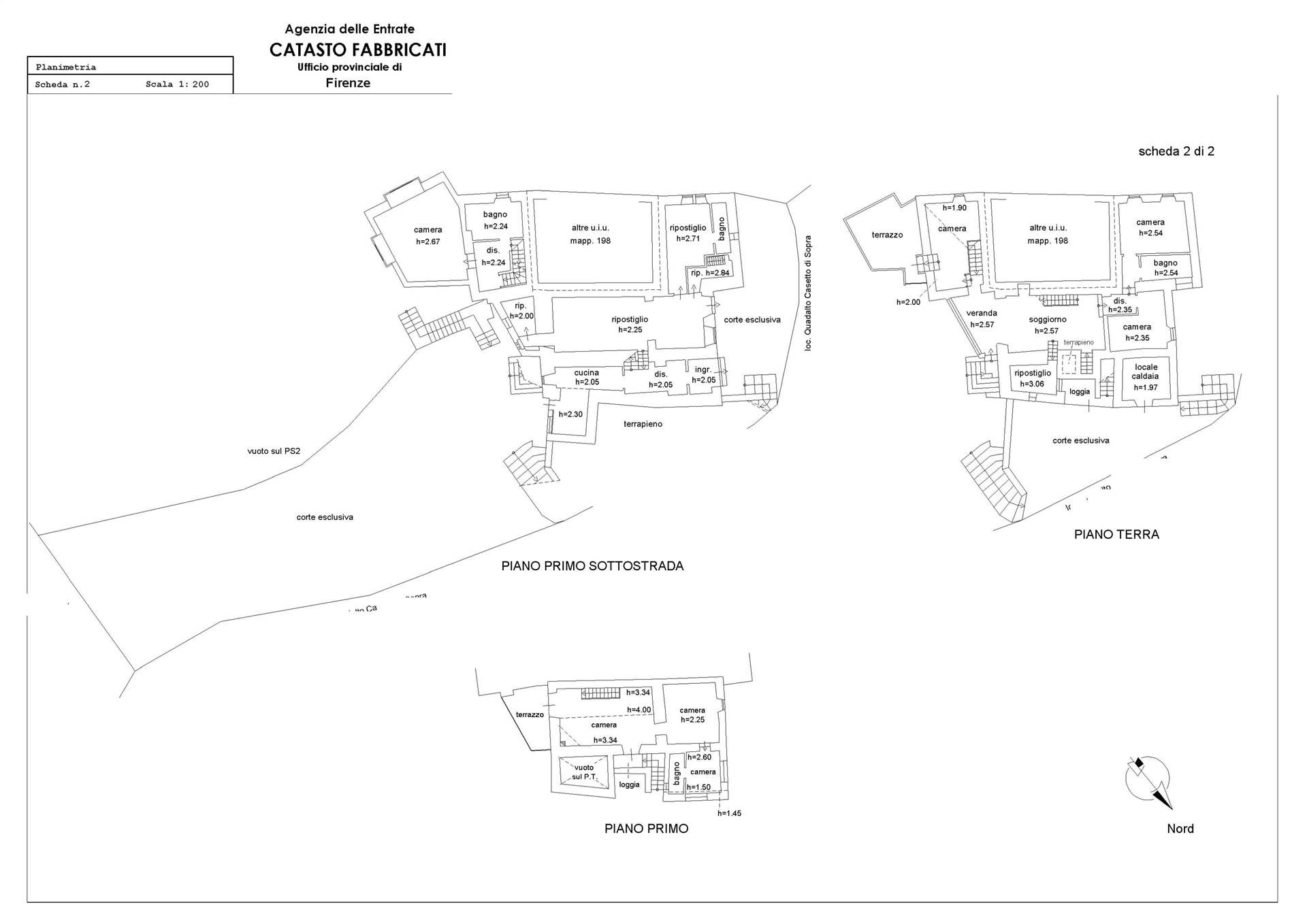
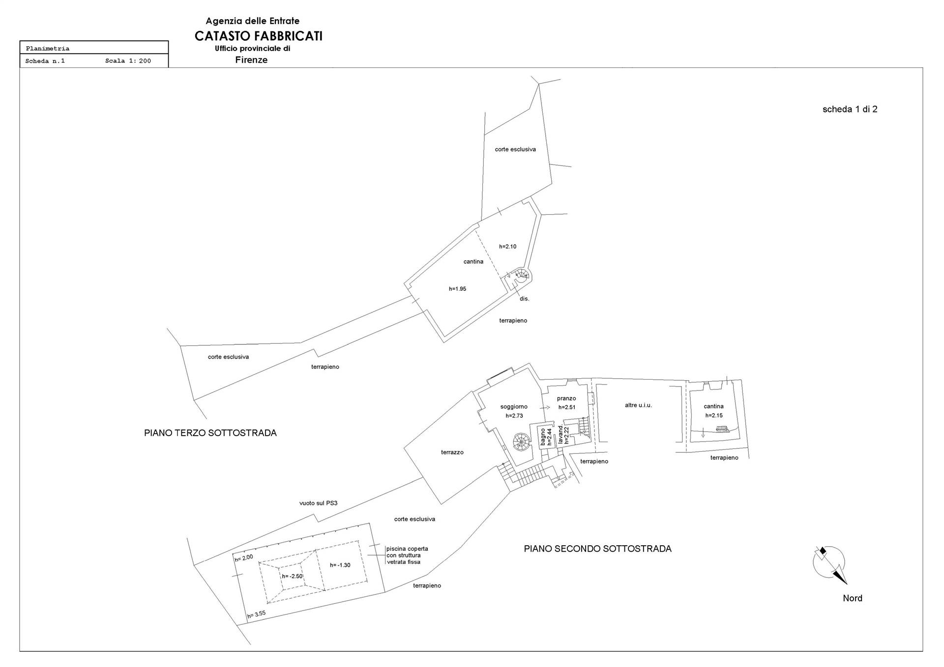
Colonica a Palazzuolo Sul Senio
Immerso nel verde incontaminato dell'appennino Tosco-Romagnolo, a pochi passi dal centro storico di Palazzuolo sul Senio, ti aspetta un'opportunità unica: una porzione di complesso immobiliare su più piani, perfetta per chi cerca spazio e tranquillità. Il fabbricato principale, con i suoi 18 vani e 5 bagni, offre ampie possibilità di personalizzazione, mentre la piscina coperta (da ristrutturare) ed il giardino privato promettono momenti di relax indimenticabili.
Con una superficie commerciale di 565 m² e calpestabile di 470 m², questa proprietà include annessi come garage, depositi e magazzini, oltre ad un fabbricato in muratura di pietrame allo stato grezzo. Il riscaldamento ed i vari camini garantiscono comfort tutto l'anno. Completa l'offerta un vasto appezzamento di terreno agricolo di oltre 29 ettari. Libero al rogito notarile, questo casale è pronto a diventare il tuo rifugio ideale nella natura, pur essendo vicino ai servizi della città. Non perdere l'occasione di trasformare questo angolo di paradiso nella tua nuova casa!
Dove si trova
Informazioni generali
Accessori
Efficienza energetica
Richiesta informazioni all'agenzia
Richiedi informazioni all'agenzia
