Quadrilocale abitabile in zona Bagnolo-cantagallo a Impruneta
Appartamento luminoso con balconi e posto auto
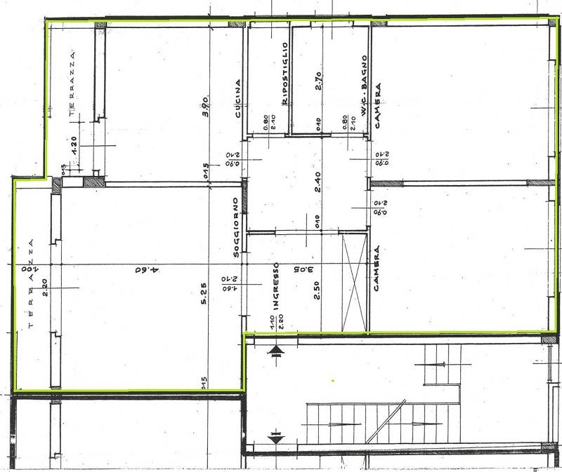
Nel Comune di Impruneta - Loc Bagnolo, in strada senza sfondo, vendesi luminosissimo appartamento posto in posizione panoramica e ben esposta, ubicato al primo piano di piccola palazzina condominiale. L'immobile si compone di ingresso in ampio disimpegno, zona giorno con porta finestra dalla quale si accede al primo balcone con vista meravigliosa sulle verdi colline circostanti, dal soggiorno si accede alla cucina abitabile con secondo balcone panoramico. Un'ampia zona disimpegno porta alle due camere matrimoniali, al servizio con doccia finestrato, oltre al vano ripostiglio/multiuso facilmente trasformabile in secondo bagno. Completa la proprietà un posto auto coperto nel garage condominiale. L'oggetto si presenta in buone condizioni generali e perciò abitabile fin da subito, anche se necessita di ammodernamento e/o parziale ristrutturazione in base alle esigenze e necessità. Ottimo contesto, ben servito dai mezzi extraurbani, a metà strada tra il capoluogo e il paese di Tavarnuzze. Termosingolo a metano. Classe energetica G. Rif 1/1681 Richiesta € 250.000
Dove si trova
Informazioni generali
Accessori
Efficienza energetica
Planimetria
Richiesta informazioni all'agenzia
Richiedi informazioni all'agenzia
