Terreno edificabile a Montaione
685 m2
€ 270.000
In zona collinare panoramica ed a pochi Km dal centro del paese, ex fabbricato agricolo di mq 685 complessivi con terreno di 2 ettari a seminativo. Possibilità di costruire un immobile a destinazione residenziale, allaccio alla rete idrica ed elettrica già presenti. Proprietà ideale per la realizzazione di una struttura ricettiva o di un fabbricato con più unità abitative indipendenti (anche in bioedilizia). E' possibile acquistare un ulteriore fabbricato adiacente di mq 200 con h. 5 mt e 13,5 ettari di terreno con 3 Ha a bosco e 10 Ha a seminativo. Prezzo trattabile.
Dove si trova
43.5536110.91172
Informazioni generali
M 46
685 m2
€ 270.000
Vendita
Terreno edificabile
Montaione
Libero
20/01/2026
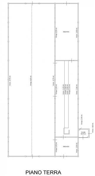
Planimetria
Richiesta informazioni all'agenzia
Richiedi informazioni all'agenzia
Agenzia Immobiliare ll Borgo
Via V. Veneto n. 21
50050
Gambassi Terme
(FI)
P.IVA: 05153920482
