Villa abitabile a Rignano Sull'Arno
350 m2
12 vani
5 camere
4 bagni
box
€ 750.000
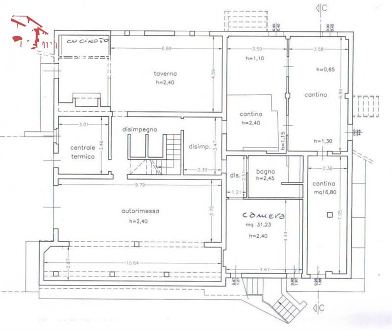
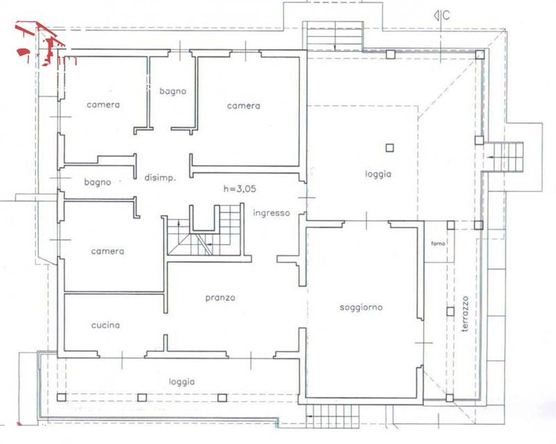
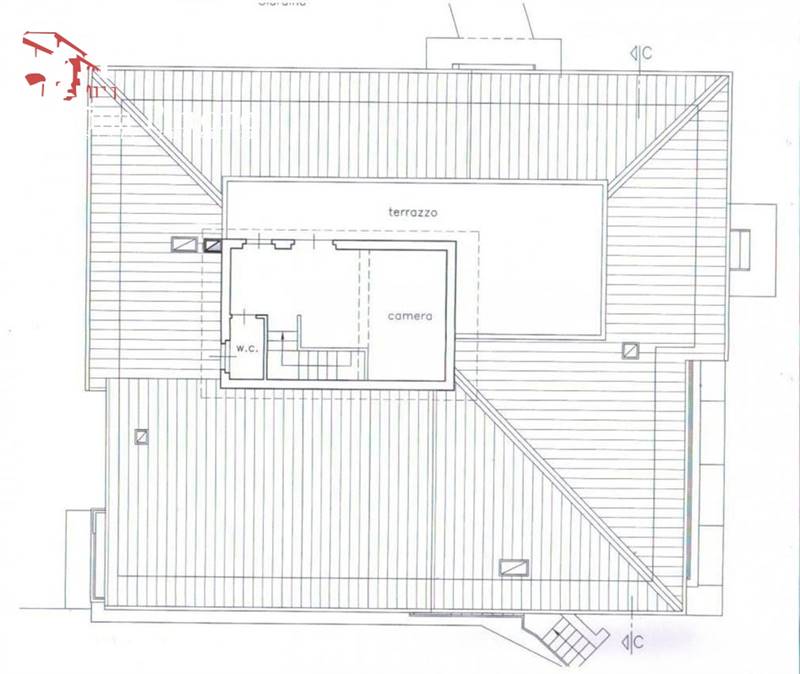
San Donato in Collina (9 KM, 15 minuti in auto da Firenze) vendesi villetta moderna libera su 4 lati e disposta su 3 livelli, con mq.3.000 circa di giardino. Ingresso da loggia abitabile con camino, ampio ingresso, soggiorno con camino, tinello, cucina abitabile, 3 camere, 2 bagno. Mansarda con camera, bagno e terrazza panoramica abitabile. Al piano seminterrato altra camera indipendente con servizio, taverna con forno, lavanderia, garage e cantina. Pozzo privato. Adatta a 2 nuclei familiari. Euro 750.000 app82
Dove si trova
43.7030511.3792
Informazioni generali
APP82
350 m2
12 locali
€ 750.000
Vendita
Villa
Rignano Sull'Arno
Medio Signorile
Libero
30/05/2023
Accessori
4
5
Autonomo
Abitabile
Cucinotto
3000 mq
si
si
si
si
si
Efficienza energetica
E
E
80,1 kwh/m2 anno
Planimetrie
Richiesta informazioni all'agenzia
Richiedi informazioni all'agenzia
Caterina Pirrone Immobiliare
viale Europa, 101
50126
Firenze
(FI)
P.IVA: 05393280481
