Villa in Via Sprumaro, Snc a Cervaro
vendita Villetta Trifamiliare Cervaro
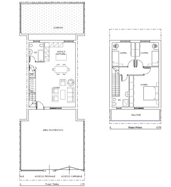
Splendida opportunità di acquisto, Villetta Centrale in schiera di tre. Proponiamo in esclusiva la vendita di una soluzione su due livelli di nuova costruzione. L'immobile si trova nel comune di Cervaro, in zona collinare, residenziale e ben esposta, ed è composto da ingresso in soggiorno living con cucina a vista, bagno e ripostiglio al piano terra, tre camere, bagno e balcone al piano primo. La soluzione dispone di ampia zona antistante pavimentata di circa 80 mq per accesso pedonale e carrabile oltre giardino retrostante esclusivo di circa 50 mq. Utilizzo di materiali a basso impatto ambientale di origine naturale e/o di facile riciclabilità. Elevata coibentazione termica dell’involucro. Elevato comfort abitativo, con l’adozione di sistema radiante a pavimento. Tetto ventilato con pannello termico. Impianto fotovoltaico 3kw. CLASSE ENERGETICA A. Possibilità di personalizzazione.
Per ulteriori informazioni in merito a questo immobile e per altre nostre proposte potrete contattarci telefonicamente al recapito 077623316 o recarvi presso i nostri uffici in Cassino, Viale Dante 1/3.
