Bilocale a Chiavari
65 m2
2 vani
2 camere
1 bagno
box
€ 150.000
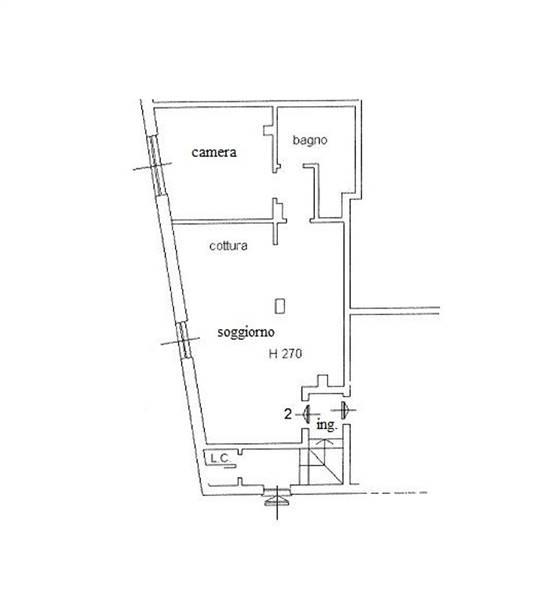
Vendesi a Chiavari (Ge) comodo al centro ed al mare, in palazzo con tetto e facciata ristrutturati, posto in un alto piano rialzato, in una porzione indipendente dello stabile principale con soli due immobili, appartamento ristrutturato composto da ingresso nell'ampio soggiorno, una camera da letto matrimoniale, disimpegno/antibagno, bagno con doccia. Attualmente occupato da singolo inquilino con contratto di locazione con scadenza dicembre 2026.
Dove si trova
44.316399.337117
Informazioni generali
VV7
65 m2
2 locali
€ 150.000
Vendita
Appartamento
Chiavari
1970
17/12/2025
Accessori
1
2
Efficienza energetica
F
F
162,91 kwh/m2 anno
Richiesta informazioni all'agenzia
Richiedi informazioni all'agenzia
Agenzia A.Effe Immobiliare
corso Valparaiso 114 Chiavari
16043
Chiavari
(GE)
P.IVA: 00061200994
