Appartamento in Via Dell'Orsa maggiore 7 a Castiglione della Pescaia
118 m2
5 vani
3 camere
2 bagni
box
ascensore
€ 340.000
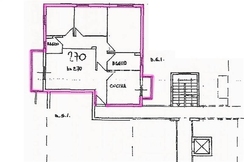
D/CD3780 - Nella splendida cornice di Castiglione della Pescaia, proponiamo in vendita un appartamento. L'immobile, posto al secondo piano con ascensore, ha una metratura interna di 105 mq., internamente così distribuiti: luminoso soggiorno con balcone di servizio, cucina con balcone di servizio, proseguendo trova spazio la zona notte costituita da tre camere e due bagni. Un comodo garage (18 mq) si trova lungo la strada e permette di mettere comodamente al riparo l'auto.
Dove si trova
42.768810.88522
Informazioni generali
D/CD3780
118 m2
5 locali
€ 340.000
Vendita
Appartamento
Castiglione della Pescaia
Via dell'Orsa Maggiore 7
€ 75
Economico
Libero
1990
01/12/2025
Accessori
2
3
Autonomo
Abitabile
Abitabile
si
18 mq
6 mq
Efficienza energetica
E
E
176,96 kwh/m2 anno
9,92 kwh/m2 anno
Richiesta informazioni all'agenzia
Richiedi informazioni all'agenzia
