Trilocale in Santa Mariae a Castiglione della Pescaia
D/CD3324MARE - In esclusiva proponiamo in vendita appartamento di tre vani a Castiglione della Pescaia. Gode di una posizione dominante, molto particolare e per certi versi esclusiva perché adagiata sul versante del Poggio alle Trincee con ottima vista mare e sulla Diaccia Botrona, riserva naturale protetta. L'immobile con ingresso indipendente raggiungibile sia da valle che da monte, in corso di costruzione, ubicato al quinto piano su sei di un articolato complesso edilizio formato da tre edifici principali adagiati lungo il naturale pendio, collegati tra loro da scalinate. Ha una superficie totale commerciale di 63 mq., così suddivisi: 53 mq. dell'appartamento composto da un soggiorno con angolo cottura, due camere da letto e un bagno; 15 mq. di posto auto coperto; un terrazzo di 7,5 mq. dal quale si possono apprezzare viste panoramiche sulla pineta e sul litorale sino ai monti dell'Uccellina nel Parco Regionale della Maremma.
Dove si trova
Informazioni generali
Accessori
Efficienza energetica
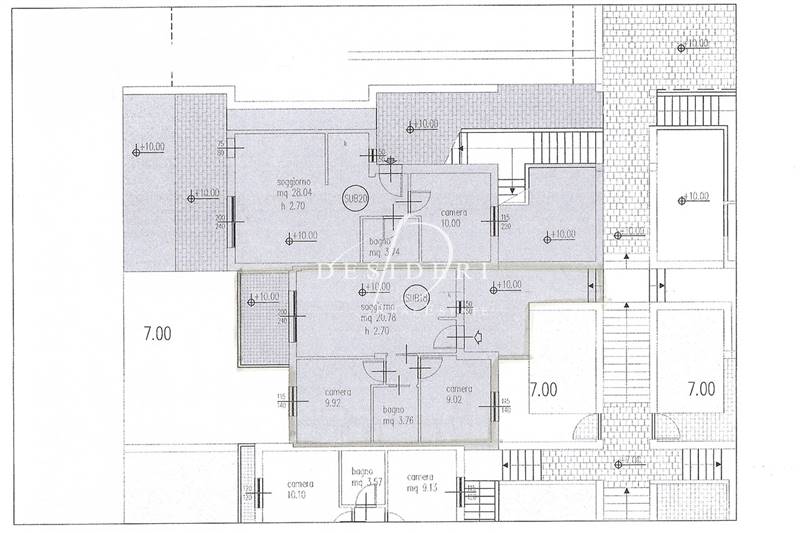
Planimetria
Richiesta informazioni all'agenzia
Richiedi informazioni all'agenzia
