Trilocale in nuova costruzione in zona Bagno di Gavorrano a Gavorrano
69 m2
3 vani
2 camere
box
€ 185.000
Bagno di Gavorrano
Nostra Esclusiva
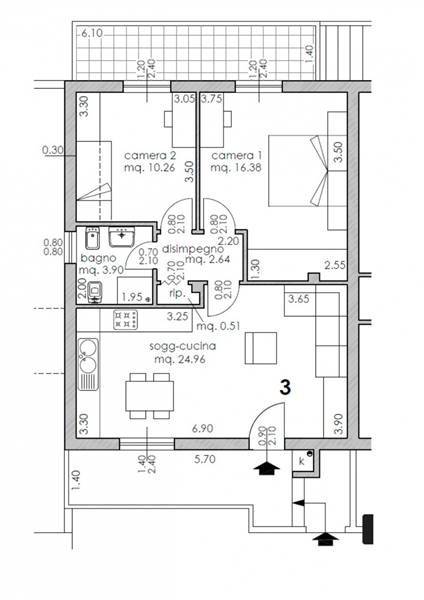
In posizione centrale, proponiamo in vendita un bellissimo appartamento posto al piano terra, inserito in un edificio appena ultimato, con ottime rifiniture. L'immobile ha l'ingresso indipendente attraverso un balcone ed è composto da: soggiorno con zona cottura, due camere da letto e bagno. Ampio garage di mq 34. L'immobile è dotato di autoclave, condizionamento zona notte e zona giorno e predisposizione pannelli solari. La vendita viene effettuata dal costruttore.
185.000
IMMOBILIARE VERDEMARE TEL.0566 845760
Dove si trova
42.9372710.88909
Informazioni generali
1511
69 m2
3 locali
€ 185.000
Vendita
Appartamento
Gavorrano
Bagno di Gavorrano
29/11/2025
Accessori
2
Autonomo
Nuova costruzione
Angolo cottura
34 mq
Efficienza energetica
B
B
Richiesta informazioni all'agenzia
Richiedi informazioni all'agenzia
Immobiliare VerdeMare
Via Marconi 135
58021
Gavorrano
(GR)
P.IVA: 01343100531
