Trilocale in Corso Italia 180 a Orbetello
D/CD3759 - Centro storico di Orbetello, in posizione comoda e ben servita, proponiamo in vendita un appartamento di 48 mq, disposto su un unico livello e situato al piano secondo di una piccola palazzina.
Soluzione ideale come prima casa, appoggio per il mare o investimento a reddito. L'immobile internamente è così composto: soggiorno con angolo cottura, camera da letto matrimoniale e un bagno. Dotato di riscaldamento autonomo con caldaia, climatizzazione caldo/freddo e autoclave privata, garantisce comfort in ogni stagione. Completa la proprietà un terrazzo vivibile di 10 mq, perfetto per cene all'aperto o momenti di relax. L'appartamento si distingue per la posizione strategica, a pochi passi dal centro e dalla laguna, e per le basse spese di gestione, che lo rendono particolarmente interessante anche per chi cerca un investimento a reddito.
Dove si trova
Informazioni generali
Accessori
Efficienza energetica
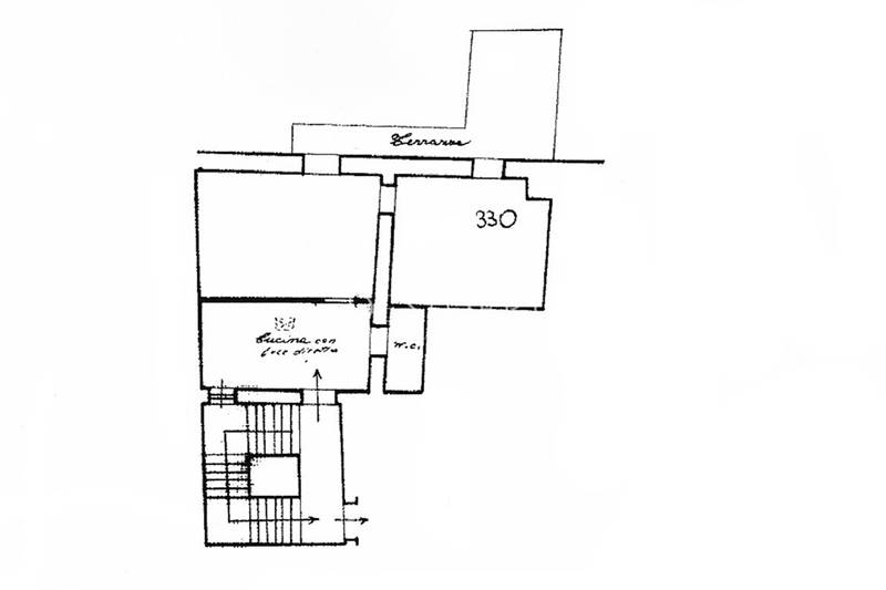
Planimetria
Richiesta informazioni all'agenzia
Richiedi informazioni all'agenzia
