Villa abitabile in zona Vetulonia a Castiglione della Pescaia
130 m2
4 vani
2 camere
1 bagno
€ 135.000
NEL CENTRO DEL PAESE DI VETULONIA -
Comune di Castiglione della Pescaia
VILLETTA MONOFAMILIARE INDIPENDENTE DISPOSTA SU DUE LIVELLI :
AL PIANO TERRA INGRESSO CUCINA ABITABILE E SALA ,
AL PIANO AMMEZZATO TROVIAMO UN BAGNO E LA PORTA DI ACCESSO, SUL RETRO DEL FABBRICATO, ALLA CORTE DI PROPRIETA' DOVE TROVIAMO UN PICCOLO ANNESSO IN MURATURA DA UTILIZZARE COME CANTINA, E UNO SPAZIO ESTERNO PAVIMENTATO.
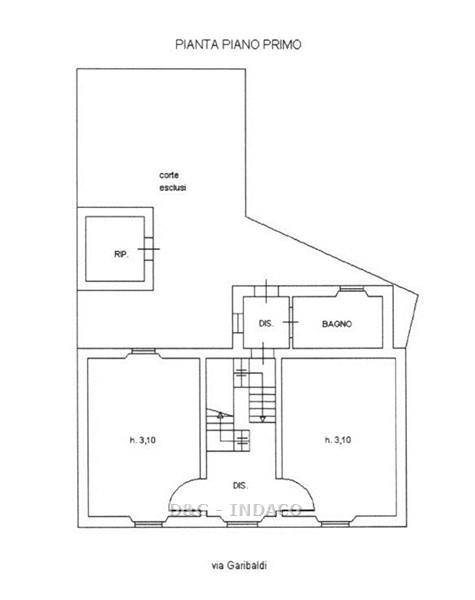
AL PIANO PRIMO DUE CAMERE GRANDI CON ZONA DISIMPEGNO CHE PORTA AD UNA SOFFITTA.
CANNE FUMARIE PER UN RISCALDAMENTO A LEGNA/PELLET E INFISSI IN OTTIME CONDIZIONI.
Dove si trova
42.7658710.88236
Informazioni generali
1814.D67
130 m2
4 locali
€ 135.000
Vendita
Villa
Castiglione della Pescaia
Vetulonia
Libero
17/07/2022
Accessori
1
2
Autonomo
Abitabile
70 mq
si
Efficienza energetica
G
G
170 kwh/m2 anno
Richiesta informazioni all'agenzia
Richiedi informazioni all'agenzia
