Bilocale in nuova costruzione a Diano Marina
NUOVI APPARTAMENTI FRONTE MARE
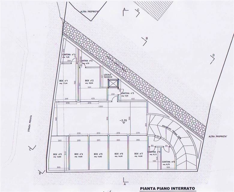
DIANO MARINA, RIVIERA DEI FIORI, IMPERIA LIGURIA. FRONTE MARE. CI TROVIAMO NELL’ARCO OCCIDENTALE DEL GOLFO DIANESE, OLTRE LE SPIAGGE DI SANT’ANNA, LUNGO L’ITINERARIO DELLA NUOVA PISTA CICLABILE, IL PIU’ PROLUNGATO E PANORAMICO PERCORSO CICLISTICO DEL MONDO, SUL QUALE PRESTO SI POTRA’ PEDALARE IN ASSOLUTA SICUREZZA DA SAVONA A VENTIMIGLIA! QUI, PROPRIO DAVANTI AL MARE, IMPREZIOSITA DA UNA VISTA STRAORDINARIA, STA SORGENDO UNA MODERNA, RAFFINATA PALAZZINA CON 13 PRESTIGIOSI APPARTAMENTI, BOX, POSTI AUTO E CANTINE, PROGETTATA DA UNA SOLIDA IMPRESA LOCALE. LA QUALITA’ COSTRUTTIVA E’ ALQUANTO RAGGUARDEVOLE: INFATTI IL FABBRICATO SARA’ TUTTO IN CLASSE ENERGETICA “A”, CON “CAPPOTTO” ISOLANTE ESTERNO, INFISSI A TAGLIO TERMOACUSTICO, TAPPARELLE ELETTRICHE E PANNELLI SOLARI. OGNI ALLOGGIO SARA’ CLIMATIZZATO E DOTATO DI VIDEOCITOFONO. LE METRATURE DISPONIBILI SONO TALI DA SODDISFARE OGNI ESIGENZA: DAL COMPATTO BILOCALE DI 54 METRI QUADRATI, FINO ALLO SPAZIOSO ATTICO DI 109. CASA VACANZE, DUNQUE, MA ANCHE CONFORTEVOLE PRIMA RESIDENZA PER GLI AMANTI DEL MARE CHE PERO’ NON VOGLIONO RINUNCIARE ALLE COMODITA’; IL CENTRO, INFATTI, CON TUTTI I SUOI RICHIAMI, E’ RAGGIUNGIBILE ANCHE A PIEDI E, COMUNQUE, SOTTOCASA, VI SONO NEGOZI E RISTORANTI, NON SOLO SPIAGGE! INSOMMA, UNA POSIZIONE STRATEGICA CHE, AI COLORI DELLA NATURA ED AL MELODIOSO SCIABORDIO DELLE ONDE MARINE, SA ABBINARE LA PRATICITA’ DEI SERVIZI PER DEFINIRE UN “FINE LIVING” DAVVERO IMPAREGGIABILE. PRENOTATE LA VOSTRA VISITA IN CANTIERE, SIAMO APERTI ANCHE NEI GIORNI FESTIVI E NEI FINE SETTIMANA. INSIEME POTREMO INDIVIDUARE L’APPARTAMENTO PIU’ ADATTO A VOI E DEFINIRE UN PROGRAMMA DI INVESTIMENTO PERSONALIZZATO. CHIAMATE IL CLUB IMMOBILIARE DI DIANO MARINA AI NUMERI 0183 493287, 328 7690290, 333 7212297; OPPURE SCRIVETECI: info@clubimmobiliare.com E RICEVERETE RISPOSTE RAPIDE, COMPETENTI ED ESCLUSIVAMENTE DEDICATE A VOI. LE VOSTRE VISITE AL NOSTRO SITO SONO SEMPRE GRADITE: www.clubimmobiliare.com
Dove si trova
Informazioni generali
Accessori
Efficienza energetica
Video
Richiesta informazioni all'agenzia
Richiedi informazioni all'agenzia
