Casa semi indipendente in Via Gionetti a Diano San Pietro
PROPRIETA' CON GIARDINO E DEPENDENCE
DIANO SAN PIETRO E' UN COMUNE A CIRCA 2 KM DAL MARE DI DIANO MARINA, CHE SI PUO' RAGGIUNGERE COMODAMENTE IN BICI, PERCHE' LA STRADA E' PIANEGGIANTE. IN QUESTO GRAZIOSO PAESE, CHE HA NEGOZI DI ALIMENTARI, LE POSTE, LA FARMACIA E LE SCUOLE, PRESENTIAMO UNA PROPRIETA’ DAVVERO SUGGESTIVA, COMPOSTA DA UN ANTICO FABBRICATO, RESTAURATO CONSERVATIVAMENTE, INTEGRATO ED AMPLIATO DA UN’ALA DI NUOVA REALIZZAZIONE ED INFINE COMPLETATO DA UN’UTILE DEPENDENCE.
IL RISULTATO E’ UNA BILANCIATA SINTESI FRA TRADIZIONE E MODERNITA’, CHE COLPISCE PER LA SUA CAPACITA’ DI ASSOCIARE ALLE COMODITA’ DI UNA CASA CONTEMPORANEA, IL FASCINO DI UNA DIMORA D’ALTRI TEMPI.
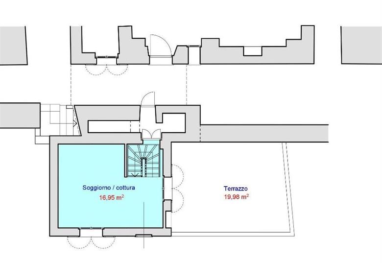
L’IMMOBILE ESORDISCE CON UN BEL GIARDINO DI 190 METRI QUADRATI, OVE SI POSSONO COMODAMENTE COLLOCARE FINO A TRE VETTURE, SENZA PREGIUDICARNE LA FRUIBILITA’: INFATTI, ANCHE DOPO AVER PARCHEGGIATO, RESTA TANTO SPAZIO PER I GIOCHI DEI BAMBINI E PER IL BARBECUE DEGLI ADULTI… AL PIANO TERRA VI SONO DUE CAMERE DA LETTO, IL BAGNO ED IL VANO SCALE CHE CONDUCE AL PRIMO PIANO, OVE TROVANO POSTO IL SOGGIORNO CON LA CUCINA A VISTA E LA LUMINOSA TERRAZZA DI 20 METRI QUADRATI, CHE VEDE IL MARE. A COMPLETARE LA PROPRIETA’, UNA SUGGESTIVA DEPENDANCE DI OLTRE 45 MQ, RICAVATA DALLA RISTRUTTURAZIONE DELLA VICINA CASA IN PIETRA: UNA SPAZIOSA ZONA GIORNO CON CUCINA SEPARATA, LA CAMERA DA LETTO ED I SERVIZI. LA PIETRA A VISTA, PERFETTAMENTE SABBIATA, DONA UN'ATMOSFERA CALDA ED AVVOLGENTE.
IL SISTEMA DI RISCALDAMENTO PER ENTRAMBE LE SOLUZIONI ABITATIVE E' EFFICACE E CONVENIENTE. LA CALDAIA IDRO PELLET ALIMENTA I TERMOSIFONI DI TUTTA LA CASA E PUO' VENIRE INTEGRATA, SECONDO NECESSITA', DA QUELLA A GASOLIO. VI E' LA POSSIBILITA' DI ACQUISTARE SEPARATAMENTE I DUE IMMOBILI A PREZZI INTERESSANTI: 280.000,00 EURO PER LA CASA PADRONALE; 110.000,00 EURO PER L'APPARTAMENTO INDIPENDENTE. PRENOTATE LA VOSTRA VISITA PRESSO IL CLUB IMMOBILIARE DI DIANO MARINA, IMPERIA, LIGURIA, RIVIERA DEI FIORI.
Dove si trova
Informazioni generali
Accessori
Efficienza energetica
Video
Richiesta informazioni all'agenzia
Richiedi informazioni all'agenzia
