Appartamento in Piazza Verdi in Magnifico Palazzo D'Epoca - box auto in zona Centro a la Spezia
Vendita Appartamento con box auto, Ottime condizioni, in zona Centro, LA SPEZIA
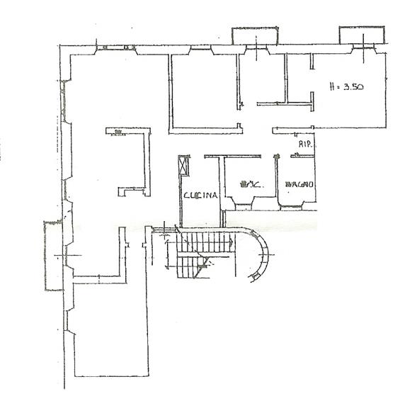
CENTRO STORICO PIAZZA VERDI SIGNORILE APPARTAMENTO CON BOX AUTO – Adiacente a Piazza Verdi, in una delle zone residenziali più richieste del centro storico per la bellezza dei palazzi d’epoca e per la tranquillità durante il giorno e la notte, in palazzo d’epoca di particolare pregio e bellezza, al quarto piano con ascensore proponiamo in vendita luminosissimo appartamento angolare di mq. 175 commerciali, dotato di tre balconi e cantina. L’appartamento d’impronta classica presenta una distribuzione razionale degli ambienti interni con separazione tra zona giorno e zona notte, è suddiviso in 7 ampi vani (consultare la planimetria) con salone angolare doppio dotato di camino, studio, cucina, tre camere da letto, doppi servizi entrambi con finestra e ripostiglio, ed ha una tripla esposizione. Le rifiniture sono in marmo e parquet, gli ambienti molto vivibili e spaziosi, le finestre molto ampie in legno, soffitti alti a 3,50 metri. Ottima esposizione solare a sud, finestre tutte in facciata escluse quelle dei servizi. Gradevole scorcio di vista mare dal balcone. Riscaldamento autonomo.
Ulteriori foto sono disponibili su richiesta.
Richiesta € 470.000 trattabili.
Box auto a 200 metri.
L'indirizzo ed il posizionamento dell'immobile indicato sulla mappa sono puramente indicativi.
Per maggiori informazioni su questo appartamento ed altri immobili con caratteristiche simili nella zona di La Spezia potete contattare il numero 3493724018 e visitare il nostro sito www.mareimmobiliare.com
Dove si trova
Informazioni generali
Accessori
Efficienza energetica
Richiesta informazioni all'agenzia
Richiedi informazioni all'agenzia
