Casa singola in Via Canale 224 a Castelnuovo Magra
Case - Casa indipendente a Castelnuovo Magra
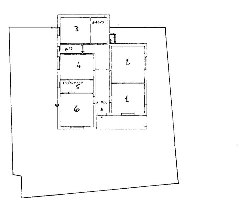
A Castelnuovo Magra, al piano e comoda a tutti i servizi, proponiamo in vendita casa indipendente disposta su un unico livello, con giardino/terreno. L’abitazione si compone di ingresso, ampio soggiorno, tinello/sala, cucinotto. La zona notte è composta da tre spaziose camere da letto e due bagni finestrati. Completa la proprietà un terreno di circa 3000 mq, ideale per chi desidera godere di ampi spazi esterni o realizzare un giardino, un orto o una zona relax. La casa si presenta in buono stato generale, con la possibilità di un riordino per adattarla a uno stile più moderno. Libera da subito, contesto tranquillo, ma ben collegato.
Si avvertono i signori clienti che gli indirizzi inseriti all'interno dell'annuncio sono puramente indicativi e non rispecchiano la realtà. Questa indicazione vuole essere un ausilio nell'individuazione della zona pur rispettando la privacy dei venditori....
Dove si trova
Informazioni generali
Accessori
Efficienza energetica
Planimetria
Richiesta informazioni all'agenzia
Richiedi informazioni all'agenzia
