Quadrilocale a la Spezia
100 m2
4 vani
€ 158.000
Appartamento - Quadrilocale a La Spezia
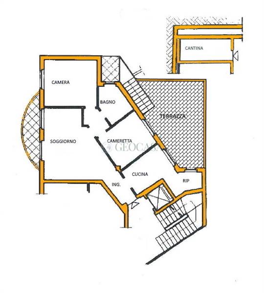
LOC. TERMO: In piccola palazzina grazioso appartamento di quattro vani con ascensore, corredato da terrazza, ampio balcone e locale cantina accessibile anche con mezzi a due ruote . Sito in zona centrale il fabbricato si trova in una posizione defilata dal traffico. Comodo ai servizi e con facilità di parcheggio.
APE G Ipe 171 Kwh/mq anno
Dove si trova
Informazioni generali
VZ98171
100 m2
4 locali
€ 158.000
Vendita
Appartamento
la Spezia
Medio Signorile
01/06/2022
Accessori
si
Efficienza energetica
G
G
171 kwh/m2 anno
Richiesta informazioni all'agenzia
Richiedi informazioni all'agenzia
BHA SRL
via del torretto 23 25
19120
la Spezia
(SP)
P.IVA: 00313410110
