Quadrilocale in Via Marconi, 98-100 a Aprilia
212 m2
4 vani
€ 135.000
vendita Appartamento Aprilia
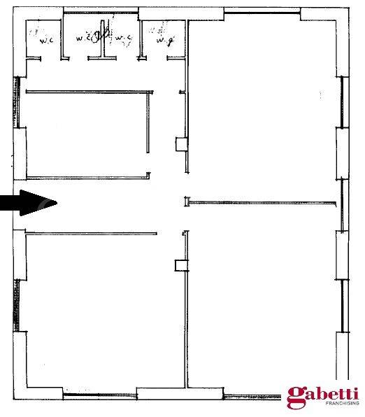
Nella zona centrale della città, proponiamo in vendita, ampio immobile di mq. 190 sito al piano terra, ad uso abitativo con corte esclusiva di mq.300 Con possibilità di personalizzazione e realizzazione di 2 appartamenti.
Informazioni generali
Cod. rif 3163476VRG
212 m2
4 locali
€ 135.000
Vendita
Appartamento
Aprilia
Via Marconi, 98-100
Libero
28/12/2025
Accessori
Terra, senza ascensore
Inesistente
Video
Richiesta informazioni all'agenzia
Richiedi informazioni all'agenzia
Aprilia
Via Delle Margherite 136/138
04011
Aprilia
(LT)
P.IVA: 03046230599
