Trilocale in Via Toscanini, Snc a Aprilia
vendita Appartamento Aprilia
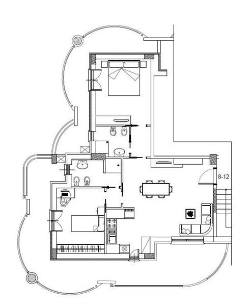
Proponiamo in vendita un moderno appartamento situato al terzo primo di un edificio di nuova costruzione, l'appartamento offre una superficie di 84.5 mq, distribuiti su un unico livello. L'immobile è composto da un luminoso living, una cucina abitabile, due camere da letto e due bagni. Gli interni sono completamente nuovi e rifiniti con materiali di alta qualità. L'appartamento dispone di un ampio terrazzo panoramico di 51,50 mq, ideale per godersi momenti di relax all'aperto. Inoltre, è dotato di ascensore e video citofono per garantire la massima comodità e sicurezza. L'anno di costruzione è previsto per il 2024, assicurando un immobile moderno e in linea con le ultime normative edilizie. È presente anche un impianto di riscaldamento e la predisposizione per l'installazione di un impianto di climatizzazione. L'appartamento si trova in una zona residenziale tranquilla e ben servita, con negozi, scuole e mezzi pubblici nelle immediate vicinanze. Questa è un'opportunità unica per acquistare un appartamento di nuova costruzione, ideale per chi cerca una soluzione abitativa moderna e confortevole. Possibilità di acquisto di box auto.
Informazioni generali
Accessori
Richiesta informazioni all'agenzia
Richiedi informazioni all'agenzia
