Casa singola in Via Liguria, 56 a Copertino
130 m2
7 vani
2 camere
€ 65.000
vendita Casa Indipendente Copertino
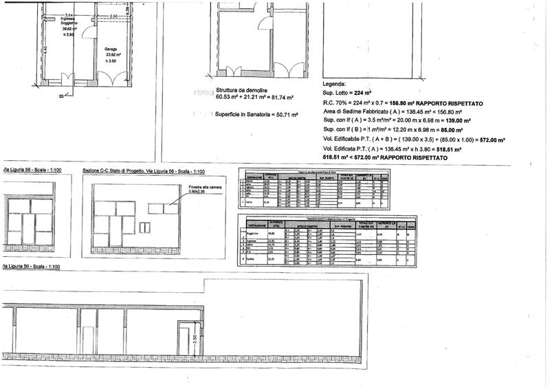
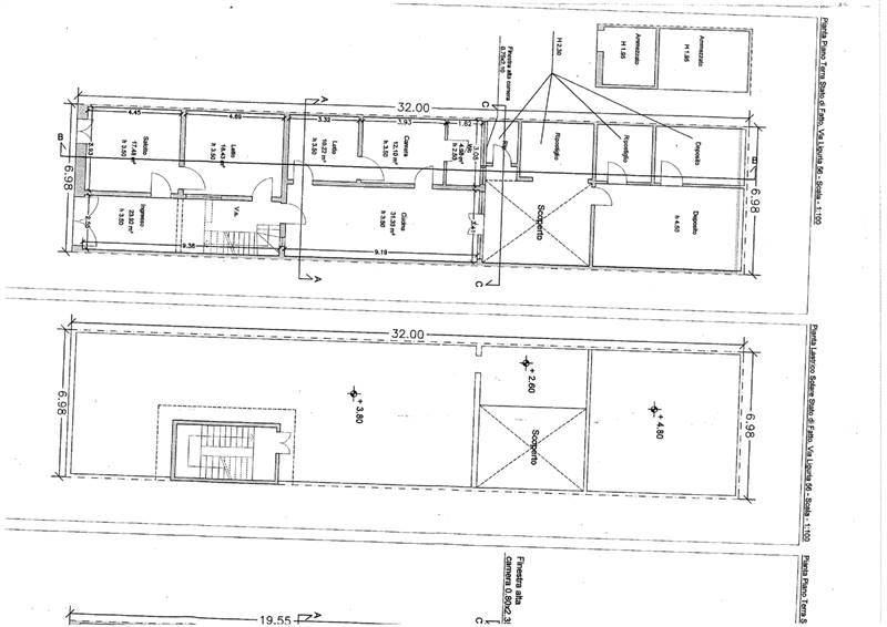
A Copertino, in zona tranquilla, si vende casa indipendente da ristrutturare. L'immobile di circa 130 mq si compone da due ingressi, due camere da letto, ampia zona giorno, un ripostiglio e un bagno. Inoltre, di proprietà dell'immobile, ampio giardino retrostante di circa 80 mq. Area solare di proprietà. Cod. Rif. CO 350
Informazioni generali
CO 350VRG
130 m2
7 locali
€ 65.000
Vendita
Casa singola
Copertino
Via Liguria, 56
Libero
1967
24/12/2025
Accessori
2
Inesistente
si
Richiesta informazioni all'agenzia
Richiedi informazioni all'agenzia
GABETTI - COPERTINO
via Mariano 15
73043
copertino
(LE)
P.IVA: 04260650751
