Appartamento in Vallescaja a Cecina

106 m2
5 vani
3 camere
1 bagno
€ 410.000
rendering 2 .png

rendering 2 .png

rendering 2 .png
rendering 1 .png

rendering 1 .png

rendering 1 .png

Appartamento - Indipendente a Cecina

CECINA (LI)
APPARTAMENTO DI NUOVA COSTRUZIONE CON GIARDINO E GARAGE.
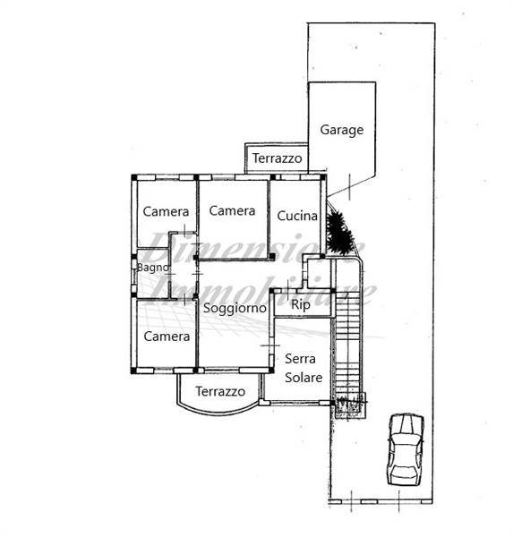
In una delle zone residenziali più ricercate di Cecina, proponiamo in vendita un appartamento di nuova costruzione posto al piano primo di una bifamiliare, con consegna prevista per Marzo 2026.
L’immobile, di circa 106 mq, si raggiunge da ingresso indipendente attraverso il giardino privato.
Una scala esterna conduce all’abitazione, dove si apre un’accogliente zona giorno con accesso diretto alla terrazza abitabile, perfetta per intrattenere i tuoi ospiti all’aperto o momenti di relax.
Ad arricchire la zona giorno una serra solare collegata al soggiorno, ideale per ampliare lo spazio con luce naturale tutto l’anno.
La cucina è separata e abitabile, anch’essa con terrazzo dedicato.
La zona notte si compone di tre camere da letto, bagno finestrato e ripostiglio, già predisposto per un eventuale secondo bagno.
A completare la proprietà: un giardino esclusivo di circa 110 mq, garage di circa 15 mq e due posti auto riservati.
L’abitazione sarà completamente autonoma dal punto di vista energetico, dotata di impianto fotovoltaico da 2kW e realizzata in classe energetica A+++, per garantire comfort, risparmio e sostenibilità.
Possibilità di personalizzazione: il futuro acquirente potrà scegliere le finiture interne e valutare modifiche alla distribuzione degli spazi.
Un’opportunità perfetta per chi cerca una casa moderna, efficiente e indipendente, in un contesto residenziale tranquillo e con tutti i principali servizi facilmente raggiungibili anche a piedi!
Consegna prevista: MARZO 2026
Per info e visite: 3202256026
Per garantire la privacy dei proprietari, l'indirizzo può non rispecchiare esattamente l'ubicazione dell'immobile ed è utile al solo fine di fornire un riferimento generico per la sua localizzazione ed un ausilio alla consultazione. L’ Agenzia declina ogni responsabilità per eventuali incongruenze contenute nell'annuncio rispetto alla reale situazione della proprietà. Vi invitiamo pertanto a verificare le caratteristiche dello specifico immobile contattando direttamente l’Agenzia Dimensione Immobiliare....

Dove si trova

43.303110.52592

Informazioni generali

C1016
106 m2
5 locali
€ 410.000
Vendita
Appartamento
Cecina
vallescaja
2025
23/12/2025

Accessori

1
3
1 di 1, senza ascensore
Autonomo
Nuova costruzione
si 
si
si

Richiesta informazioni all'agenzia

Logo agenzia

Dimensione Immobiliare

Via Fratelli Cairoli 13
Rosignano Marittimo (LI)

Autorizzazione al trattamento dei dati personali (Mostra)
Dichiaro di aver letto l'informativa sul trattamento dei dati personali e autorizzo espressamente BasicSoft S.r.l. gestore di RisorseImmobiliari.it al trattamento dei dati da me forniti. Accetto inoltre che i dati sopra inseriti siano trasmessi alle agenzie immobiliari interessate per essere da loro ricontattato. BasicSoft S.r.l. declina ogni responsabilità riguardo al trattamento di tali dati da parte delle agenzie immobiliari.
*) Riempire tutti i campi contrassegnati. Almeno uno dei campi telefono e/o cellulare devono essere riempiti
Contatta
RisorseImmobiliari.it © Copyright 2025 - Tutti i diritti sono riservati BasicSoft S.r.l. | C.F./P.IVA: 05269090485 | Reg. Imprese di Firenze | Cap.Soc. Euro 10.330,00 I.V.