Appartamento in Via Pablo Picasso in zona Vittoria Apuana a Forte Dei Marmi

200 m2
8 vani
4 camere
3 bagni
Tratt. riservata
Foto Foto
Foto Foto
Foto Foto
Foto Foto
Foto Foto
Foto Foto
Foto Foto
Foto Foto
Foto Foto
Foto Foto
Foto Foto
Foto Foto
Foto Foto
Foto Foto
Foto Foto
Foto Foto
Foto Foto
Foto Foto

Appartamento in Affitto di 200 mq a Forte dei Marmi

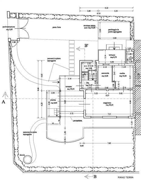
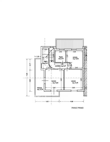
Villa con piscina in affitto a Forte dei Marmi, Vittoria Apuana. Nuova costruzione Giardino Piscina Quattro camere da letto Poco più di un chilometro dal mare Posti auto Agenzia Leonardo propone questa nuova costruzione in affitto stagionale. La proprietà è circondata da un rigoglioso giardino che richiama un'atmosfera tropicale in cui troviamo: una suggestiva piscina rivestita in mosaico con cascata e idromassaggio, zona solarium, doccia esterna, area relax, pergola coperta per pranzi e cene all'aperto e posti auto con stazione di ricarica. La casa al suo interno è disposta su due livelli così composti: Piano Terra: ingresso, ampio e luminoso soggiorno con sala da pranzo, cucina abitabile, una camera con due letti singoli e bagno di servizio con doccia. Piano Primo: una Suite Padronale completa di bagno con vasca oversize in mosaico, doccia e balcone privato con splendida vista sulle Apuane, una camera matrimoniale, una camera con due letti singoli e un bagno completo con doccia. Dotazioni/Servizi: Wifi, TvSat, Aria condizionata, Pannelli radianti a pavimento, Cassaforte, Allarme perimetrale e volumetrico, Impianto antizanzare, Piscina, Idromassaggio, Cancello automatico, Doccia esterna, Solarium, Barbecue Ofyr, Irrigazione automatica, Culle per bambini, Biancheria, Stoviglie, Lavatrice, Asciugatrice, Posti auto, Tettoia, Wallbox per auto elettriche. Rif. AF021 www.leonardorealestate.it Leonardorealestate.it e Leonardoluxury sono i due nuovi progetti dedicati agli immobili di pregio del gruppo Leonardo E' interessato a valutare altre proprietà? Ha un'immobile di pregio da proporci? Ci contatti per un appuntamento con un nostro consulente per il suo piano di markenting personalizzato 0584961129 3388594503 Leonardo Real estate Viareggio Corso Garibaldi, 170 L'indirizzo proposto può essere nelle vicinanze per ragioni di privacy

Informazioni generali

AF021
200 m2
8 locali
Trattativa
Affitto
Appartamento
Forte Dei Marmi
Vittoria Apuana
via Pablo Picasso
Libero
2021
01/11/2023

Accessori

3
4
Autonomo
Ristrutturato
Abitabile
700 mq 
si

Efficienza energetica

B
B
87 kwh/m2 anno

Richiesta informazioni all'agenzia

Logo agenzia

Immobiliare Leonardo srl

Corso Garibaldi, 170
Viareggio (LU)

Autorizzazione al trattamento dei dati personali (Mostra)
Dichiaro di aver letto l'informativa sul trattamento dei dati personali e autorizzo espressamente BasicSoft S.r.l. gestore di RisorseImmobiliari.it al trattamento dei dati da me forniti. Accetto inoltre che i dati sopra inseriti siano trasmessi alle agenzie immobiliari interessate per essere da loro ricontattato. BasicSoft S.r.l. declina ogni responsabilità riguardo al trattamento di tali dati da parte delle agenzie immobiliari.
*) Riempire tutti i campi contrassegnati. Almeno uno dei campi telefono e/o cellulare devono essere riempiti
Contatta
RisorseImmobiliari.it © Copyright 2026 - Tutti i diritti sono riservati BasicSoft S.r.l. | C.F./P.IVA: 05269090485 | Reg. Imprese di Firenze | Cap.Soc. Euro 10.330,00 I.V.