Bifamiliare in nuova costruzione a Forte Dei Marmi
Forte dei Marmi (LU), in ottima posizione, di assoluta privacy e tranquillità anche nei periodi estivi. La Villa, di nuova costruzione, costruita in sostituzione di un edificio preesistente, si sviluppa su due piani fuori terra oltre piano di copertura ed è suddivisa in due unità abitative indipendenti. Al momento la costruzione deve essere completata, in quanto devono essere ancora realizzate le opere di finitura e la sistemazione delle aree esterne. Le due unità abitative, che sviluppano specularmente su tre livelli, piani terreno, primo e copertura, sono internamente così composte:
Piano Terra - ampia zona giorno, cucina, bagno e antibagno, centrale termica, veranda coperte e veranda scoperta;
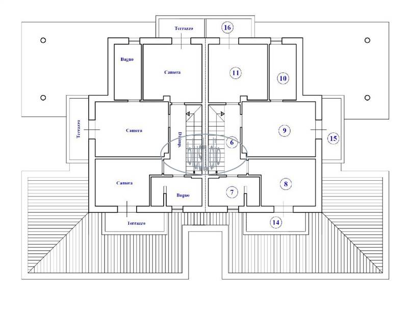
Piano Primo - tre camere tutte dotate di balcone , due bagni, di cui uno avente accesso diretto da una camera e disimpegno;
Copertura -è presente una terrazza a tasca con accesso dal sottotetto .
Esternamente entrambe le unità sono dotate di un ampio resede esclusivo, adibito in parte a giardino ed in parte ad area carrabile e parcheggio, con doppio accesso dalla via, uno pedonale, l'altro carrabile ancorchè da completare.
Gli spazi interni risultano ampi e ben organizzati, specchio dello standar qualitativo di livello medio/alto che è alla base dell'intero progetto.
L'area esterna, di superficie circa 590 mq., completa in maniera soddisfacente la dotazione delle due residenze, permettendo di sviluppare all'esterno parte delle attività quotidiane.
Gli accessi alle due unità sono garantiti da due porte finestre, una che si apre sul soggiorno l'altra sulla cucina. I due livelli, che presentano un'altezza interna di circa 2,80 mt. , sono collegati da una scala interna che diparte dal soggiorno.
L'indirizzo dell'immobile e la posizione sulla mappa vogliono essere un ausilio nell'individuazione della zona , pur rispettando la privacy dei venditori.
Contattateci per maggiori informazioni su questo ed altri immobili.
