Casa singola in Via Castellacci a Pietrasanta
Casa singola in Vendita di 270 mq a Pietrasanta
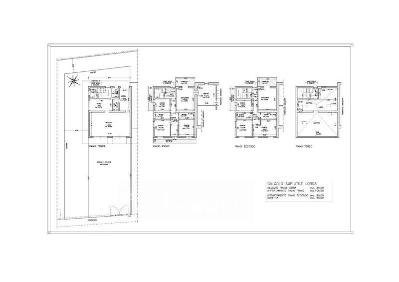
Fabbricato libero su tre lati con giardino.Proponiamo in vendita soluzione ideale per due famiglie composto da due appartamenti di 120 mq ciascuno posti al primo e secondo piano e da garage e locale commerciale al pian terreno, con giardino sui tre lati dell'immobile di circa 300 mq.L'appartamento al primo piano si compone di ingresso con ampio vano centrale, cucina con terrazzo, due camere matrimoniali con terrazzo e grande sala con terrazzo abitabile; l'appartamento al secondo piano, quasi speculare, offre camere più spaziose; il pian terreno attualmente si presenta con un garage e altro grande locale commerciale con bagno e cucina nel retro, che può essere utilizzato a rimessa con due ampi ingressi carrabili. Un piano superiore mansardato e al grezzo completa gli spazi dell'edificio.La proprietà si presenta in buone condizioni al piano primo, da rivedere al piano secondo.Posizione strategica per vicinanza al centro e ai servizi.Rif. P107www.immobiliare-leonardo.itVuoi altre informazioni?Vuoi valutare altre offerte immobiliari?Devi vendere il tuo immobile?Contattaci allo 0584961129 / +393756339708Oppure vieni a trovarci nella nostra sede di Viareggio in Corso Garibaldi, 170L'indirizzo proposto può essere nelle vicinanze per ragioni di privacy
Dove si trova
Informazioni generali
Accessori
Efficienza energetica
Planimetria
Richiesta informazioni all'agenzia
Richiedi informazioni all'agenzia
