Rustico casale in Via Rangore a Cingoli
Rustico casale in Vendita di 160 mq a Cingoli
In media collina con vista stupenda , casa rurale in mattoni su due livelli per complessivi 160 mq di superficie catastale in buone condizioni strutturali , grande magazzino con seminterrato per un totale di 150 mq, capanna attrezzi con forno a legna . Sono applicabili entrambi superbonus 110 % sia quello sisma che quello per isolamento termico oltre alla possibilita' di infissi e impianto riscaldamento nuovi oltre a impianto fotovoltaico sul tetto.
L' ampia corte di circa 5000 mq e' pianeggiante e recintata .
La casa e' una tipica costruzione rurale in muratura e cemento armato su due livelli degli anni 60 , con scala esterna .
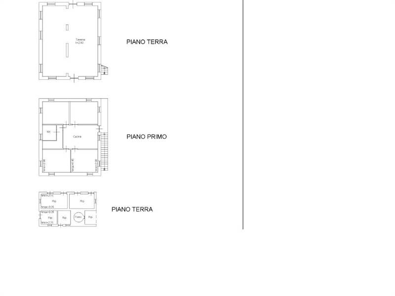
Il piano terra , una volta utlizzato per attivita' agricole , e' ora formato da unico salone taverna di circa 80 mq .
Salendo le scale , al piano superiore troviamo la cucina centrale con caminetto e stufa a legna , 4 camere e un bagno. Il tetto e' in buone condizioni in laterocemento .
La strada di accesso e' comoda pianeggiante , asfaltata salvo ultimi 50 mt . Nel complesso vi e' ottima privacy pur in un contesto facilmente accessibile e abbastanza vicino a tutti i servizi, a circa 3 km .
Dove si trova
Informazioni generali
Accessori
Efficienza energetica
Planimetria
Richiesta informazioni all'agenzia
Richiedi informazioni all'agenzia
