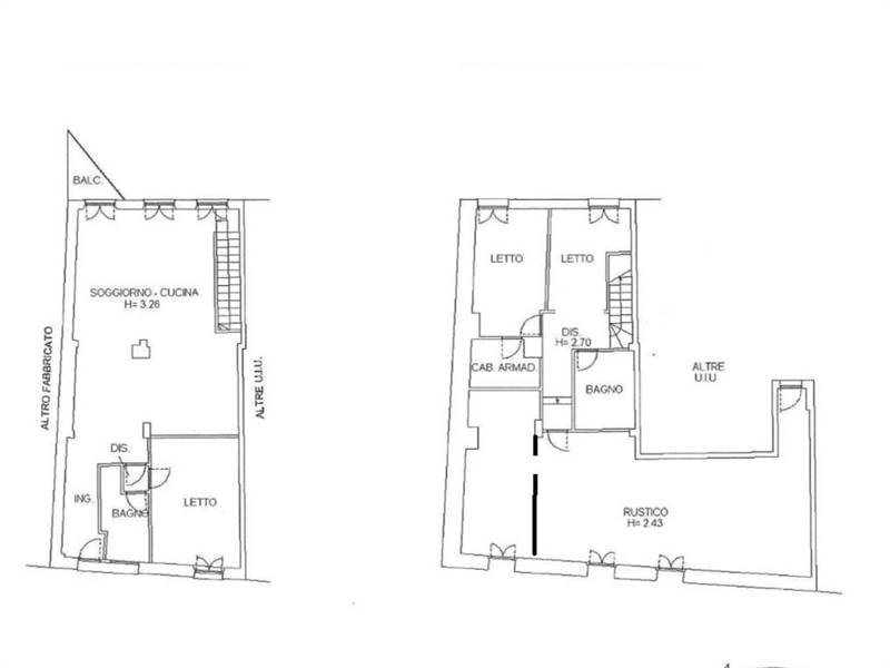
Quadrilocale ristrutturato in zona Centro Storico a Mantova
Appartamento in Vendita di 220 mq a Mantova
Mantova Centro No ZTL.Immagina di svegliarti ogni mattina in un accogliente nido urbano che si affaccia su Mantova come se fosse un frammento di Venezia. Questo delizioso appartamento vanta ampi spazi luminosi che abbracciano il tuo benessere e la tua tranquillità . Il terrazzino intimo, un rifugio di pace, ti offre un romantico scorcio della città unico, dove il tempo sembra fermarsi per te. Vivere qui è un'esperienza di eleganza e comfort senza pari, un connubio perfetto tra la magia del passato e la modernità contemporanea. Entra in questo incantevole mondo e lasciati conquistare dalla bellezza senza tempo di questa dimora. Vivere qui è abbracciare serenità e l'esclusività in ogni dettaglio.-Localizzazione conveniente: Situato in una posizione strategica e funzionale nel centro storico di Mantova,l'appartamento offre un accesso facile e veloce ai servizi essenziali, come negozi, ristoranti, trasporti pubblici e strutture ricreative.
Dove si trova
Informazioni generali
Accessori
Efficienza energetica
Richiesta informazioni all'agenzia
Richiedi informazioni all'agenzia
