Appartamento ristrutturato in zona Avenza a Carrara
100 m2
5 vani
3 camere
2 bagni
box
€ 295.000
Appartamento - Pentalocale a Avenza, Carrara
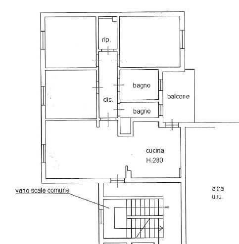
RIF. 2054 AVENZA - ZONA COOP: A 2 passi dal centro commerciale, appartamento di circa 100 mq sito al 2° piano con ascensore, ristrutturato nel 2012 e così composto: ingresso, soggiorno, cucina abitabile aperta con bel balcone, disimpegno, 3 camere matrimoniali, 2 bagni, ripostiglio e garage, tutto nuovo con impianto di domotica collegato al pc o al cell, impianto di allarme e predisposizione per il condizionamento. Termoautonomo. LIBERO SUBITO! - CL. ENERG. G - IPE 156,3.
Informazioni generali
2054
100 m2
5 locali
€ 295.000
Vendita
Appartamento
Carrara
Avenza
13/12/2018
Accessori
2 (finestrati)
3 (matrimoniali ampie)
2 di 1, senza ascensore
Ristrutturato
Abitabile
si
si
si
Efficienza energetica
G
G
156 kwh/m2 anno
Planimetria
Richiesta informazioni all'agenzia
Richiedi informazioni all'agenzia
CasaNova immobiliare
via campo d'appio 33-b
54033
Carrara
(MS)
P.IVA: 01177400452
