Bilocale in ottime condizioni a Inzago
Appartamento in Vendita di 80 mq a Inzago
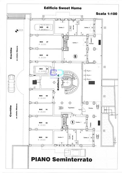
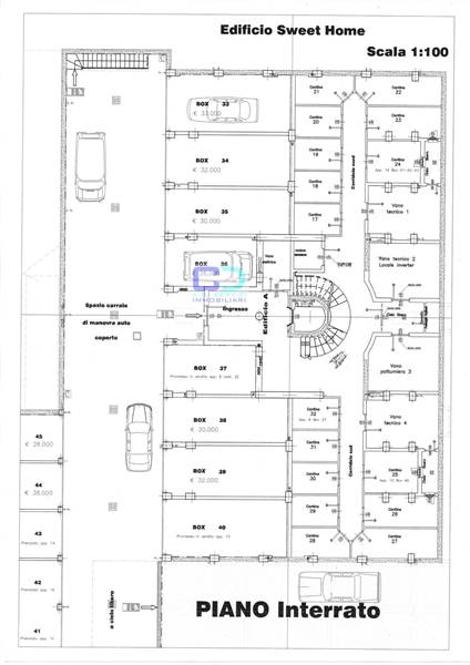
NUOVA COSTRUZIONE IN CLASSE A 2. AMPIO BILOCALE CON TERRAZZO.Proponiamo in vendita a pochi minuti dal centro di Inzago a circa 300 metri dalla piazza, nelle immediate vicinanze delle scuole medie e superiori in PRESTIGIOSA NUOVA COSTRUZIONE luminoso bilocale composto da: soggiorno con angolo cottura, disimpegno, camera matrimoniale, bagno, terrazzo e cantina. Possibilità box singoli o doppi.Ottimamente rifinito l'appartamento dispone di cappotto per isolamento termo-acustico, riscaldamento a pavimento, impianto elettrico domotico, climatizzazione estiva ed invernale, impianto di ventilazione meccanica con recuperatore di calore, pannelli fotovoltaici autonomi, sanitari sospesi, tapparelle motorizzate, predisposizione canna fumaria per stufa a pellet, predisposizione zanzariere e prdisposizione allarme. Ampia scelta e personalizzazione delle finiture Interne dal prestigioso capitolato.Gli appartamenti sono state realizzati con le migliori tecnologie presenti oggi sul mercato per fornire il massimo comfort abitativo in termini di riscaldamento invernale, raffrescamento estivo, coibentazione termica, insonorizzazione acustica e abbattimento dei consumi elettrici.Ottime finiture delle parti comuni: muri perimetrali con cappotto interno e esterno, impianto luci emergenza, impianto irrigazione automatica del giardino, ascensore panoramico a basso consumo energetico, porte basculanti per i box, scale panoramiche con vetrata che rendono l'estetica della facciata dell'edificio imponente e signorile. CONSEGNA PREVISTA GIUGNO 2023
Dove si trova
Informazioni generali
Accessori
Efficienza energetica
Richiesta informazioni all'agenzia
Richiedi informazioni all'agenzia
