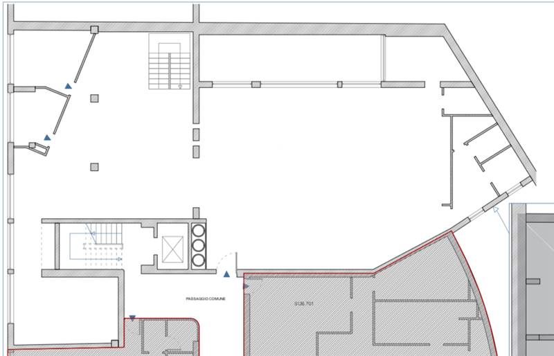
Negozio in Via Saccardo 1 in zona Lambrate a Milano
461 m2
2 bagni
ascensore
€ 1.300.000
Vendita Negozio con 4 vetrine su strada, in zona Lambrate, MILANO
Negozio di 461 mq commerciali, così ripartiti: 402 mq al piano terra e 110 mq al piano interrato.
Doppio ingresso: uno da condominio ed uno su strada con n. 4 vetrine in viale delle Rimembranze di Lambrate 4.
Possibilità di installare CANNA FUMARIA.
Spese condominiale: 4.000 €/anno
Riscaldamento AUTONOMO
Precedente attività: BANCA.
Possibilità di autorimesse singole (€ 30.000) o doppie (€ 45.000) ai piani -1 e -2 dello stabile.
Per ulteriori informazioni, non esitate a contrattarmi al 351.9353809.
Dove si trova
45.482159.239259
Informazioni generali
SACC4
461 m2
€ 1.300.000
Vendita
Negozio
Milano
Lambrate
VIA SACCARDO 1
€ 4000
Medio Signorile
Libero
2006
07/04/2022
Accessori
2
Terra, con ascensore
Autonomo
Abitabile
Efficienza energetica
B
B
Richiesta informazioni all'agenzia
Richiedi informazioni all'agenzia
SILVIO NOBILI - CONSULENTE IMMOBILIARE
Via Col Moschin 11
20136
Milano
(MI)
P.IVA: 04293990711
Cerca nel comune di Milano
Lista delle zone
- Barona/ Giambellino/ Lorenteggio
- Città Studi/ Lambrate/ Udine/ Loreto
- Fiera/ Firenze/ Sempione/ Paolo Sarpi/Arena
- V Giornate/ XXII Marzo/ Porta Romana
- De Angeli/ Vercelli/ Washinghton
- P.ta Genova/ Romolo/ Solari
- Bocconi/ Corso Italia/ Ticinese
- Centro Storico
- Affori/ Bovisa/ Niguarda/ Testi
- Greco/ Monza/ Palmanova
