Negozio seminuovo a Trezzo Sull'Adda
Negozio in Vendita di 610 mq a Trezzo sull'Adda
**Affascinante Spazio Commerciale a Trezzo sull'Adda - Offerto da Siacasa Immobiliare, Agente Geometra Stefano Tronca**Siamo entusiasti di presentarvi questo eccezionale spazio commerciale di circa 610 mq situato nel cuore di Trezzo sull'Adda, e questa incredibile opportunità è offerta da Siacasa Immobiliare tramite il nostro esperto Agente Geometra Stefano Tronca.Caratteristiche Principali:**Versatilità Senza Limiti**: Questo spazio offre il massimo della flessibilità per realizzare il vostro progetto commerciale ideale. Con un'ampia superficie a disposizione, potrete creare un ambiente su misura per le vostre esigenze, che si tratti di una palestra, uno studio di danza, una galleria d'arte o qualsiasi altra attività .**Luminosità e Accessibilità **: Le numerose vetrate che circondano il locale non solo riempiono gli spazi di luce naturale, ma offrono anche un'eccellente visibilità dalla strada, attirando l'attenzione dei passanti. I molteplici ingressi agevolano l'accesso sia per la clientela che per il personale.**Posizione Strategica**: Questa proprietà gode di una posizione di alto profilo nel cuore di Trezzo sull'Adda, garantendo una presenza in una delle zone più frequentate della città .**Parcheggio Facile**: I vostri clienti potranno usufruire di ampi spazi di parcheggio nelle immediate vicinanze, rendendo il vostro spazio facilmente accessibile.**Flessibilità di Frazionamento**: Questa proprietà può essere frazionata per adattarsi alle esigenze specifiche della vostra attività .Non perdete questa occasione unica di realizzare i vostri sogni imprenditoriali in un ambiente centrale e versatile a Trezzo sull'Adda.Per ulteriori dettagli o per fissare una visita, non esitate a contattare il nostro esperto Agente Geometra Stefano Tronca presso Siacasa Immobiliare.Vi aspettiamo per guidarvi in questa straordinaria opportunità commerciale.!
Dove si trova
Informazioni generali
Accessori
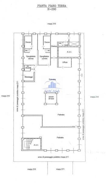
Planimetria
Video
Richiesta informazioni all'agenzia
Richiedi informazioni all'agenzia
