Quadrilocale a Inzago
Appartamento in Vendita di 193 mq a Inzago
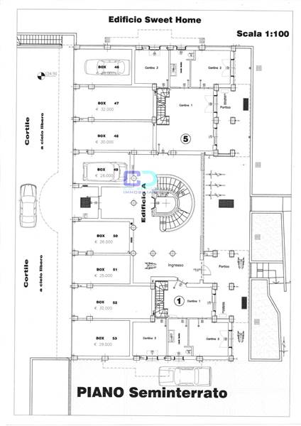
NUOVA PRESTIGIOSA COSTRUZIONE IN CLASSE A 2. QUADRILOCALE CON TRIPLI SERVIZI E TERRAZZO.Proponiamo in vendita a pochi minuti dal centro di Inzago a circa 300 metri dalla piazza, nelle immediate vicinanze delle scuole medie e superiori in PRESTIGIOSA NUOVA COSTRUZIONE signorile QUADRILOCALE composto da: Ampio Soggiorno, cucina abitabile, disimpegno, tre camere, tripli servizi, due grandi terrazzi e cantina Possibilità box singoli o doppi.Appartamento realizzato con le migliori tecnologie presenti oggi sul mercato per fornire il massimo comfort abitativo in termini di riscaldamento invernale, raffrescamento estivo, coibentazione termica e insonorizzazione acustica dispone di cappotto per isolamento termo-acustico, riscaldamento a pavimento, impianto elettrico domotico, climatizzazione estiva ed invernale, impianto di ventilazione meccanica con recuperatore di calore, pannelli fotovoltaici autonomi, sanitari sospesi, tapparelle motorizzate, predisposizione canna fumaria per stufa a pellet, predisposizione zanzariere e prdisposizione allarme. Ampia scelta e personalizzazione delle finiture Interne dal prestigioso capitolato.Ottime finiture delle parti comuni: muri perimetrali con cappotto interno e esterno, impianto luci emergenza, impianto irrigazione automatica del giardino, ascensore panoramico a basso consumo energetico, porte basculanti per i box, scale panoramiche con vetrata. CONSEGNA PREVISTA GIUGNO 2023.
Dove si trova
Informazioni generali
Accessori
Richiesta informazioni all'agenzia
Richiedi informazioni all'agenzia
