Attico in Via Italia a Muggio'
vendita Attico/Mansarda Muggio'
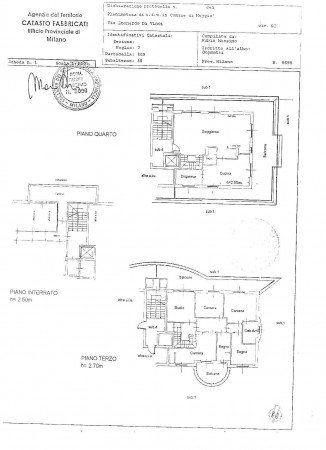
MUGGIO' In prestigioso contesto residenziale proponiamo attico superattico rifinito con materiali di pregio e dotato di impiantistica domotica. L'immobile si sviluppa su due livelli abitativi di cui la zona giorno al piano terzo con un ampio living dotato di camino, una zona salotto, accessi all'ampio balcone che circonda il piano, grande cucina con annessa dispensa. Al piano si trova anche un bagno con doccia oltre alle scale in marmo, per l'accesso al piano superiore dove si trova la zona notte.
Composta da tre camere da letto oltre ad uno studio con camino. L'ampia camera matrimoniale ha l'acceso diretto al guardaroba (finestrato) e la disponibilità di un ampio bagno padronale con vasca idromassaggio e sauna. Le camere hanno l'accesso al terrazzo e al piano troviamo un altro bagno finestrato con vasca. L'appartamento è completamente climatizzato e dotato di impianto di riscaldamento a pavimento e separato per i due piani. E' stato installato, inoltre, l'impianto di allarme.
Completano la proprietà un'ampia cantina un box doppio in larghezza e un box singolo. Visibile su appuntamento.
Informazioni generali
Accessori
Efficienza energetica
Richiesta informazioni all'agenzia
Richiedi informazioni all'agenzia
