Quadrilocale a Desio
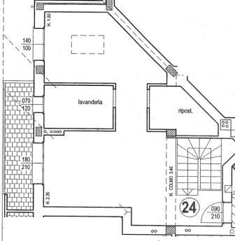
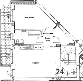
Appartamento in Vendita di 185 mq a Desio
VAREDO : PRONTA CONSEGNA in zona Valera affacciata su area verde in prossimità del centro cittadino comodo con le principali strade di collegamento, edificio in linea con finiture signorili, facciate in mattoni a vista, scale in granito, ascensori, giardini condominiali con irrigazioni e piantumazioni, cancelli automatizzati, parcheggi esterni , certificazione di tutti gli impianti, certificazione energetica dell' edificio: proponiamo soluzioni abitative per tutte le esigenze con ampi balconi, terrazzi e giardini privati , cantine e box di varie metrature. Accurate finiture e possibilità di personalizzare gli interni. CLASSE ENERGETICA 'B' INDICE PRESTAZIONE ENERGETICA 30,36 kWh/ m2a.
( Edil House 031 / 751441 ------- www.edilhouse.net )
Informazioni generali
Accessori
Efficienza energetica
Richiesta informazioni all'agenzia
Richiedi informazioni all'agenzia
