Trilocale in . a San Vitaliano
Appartamento in Vendita di 85 mq a San Vitaliano
Cerchi casa vicino a tutti i servizi pubblici e privati che rientra nel tuo budget?
Allora sei sull'annuncio giusto!
A San Vitaliano (NA) ti proponiamo un grazioso appartamento di 3 vani con box auto, in zona collegata strategicamente a Marigliano e Scisciano e con tutti i servizi a portata di mano
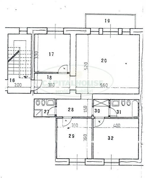
Entrando nel mini condominio di sole 6 unità abitative, saliamo al primo piano, dove trovi un ampio ingresso che ti conduce ai vari ambienti della casa.
La prima porta, ti conduce nella cucina abitabile, calda ed accogliente, per isolare il resto degli ambienti dagli odori della cucina.
Proseguendo, ti trovi nell'ampio soggiorno, con un ampia balconata che da all'ambiente luminosità e accoglienza.
Continuando per il disimpegno, raggiungi la zona notte, dove trovi un ampia camera matrimoniale, il luogo piu desiderato dopo una dura giornata di lavoro.
Una cameretta per i tuoi ragazzi, per dare anche a loro il proprio spazio.
Un bagno principale con vasca e un secondo accessorio adibito a lavanderia, provvisto di cabina doccia e sanitari, per evitare di fare le corse al mattino a chi fa per primo.
Al piano terra, trovi il box auto di esclusiva proprietà , nel quale è stato realizzato un mini soppalco per poter depositare scatoli, albero di natale o altri materiali che non vuoi avere in casa, lasciando lo spazio necessario per tenere al sicuro la tua auto.
Inoltre è dotato di balcone con affaccio all'interno del cortile, infissi ini alluminio con napoletane in ferro, porta blindata e riscaldamento autonomo.
Non esitare, CONTATTACI allo 081.841.01.15
Puoi contattarci anche qui:
Cell/Whatsapp: 393.87.98.502
E-mail: marigliano@capitalhouse.it
