Bilocale in Via Gorizia, 60 a Novara
Appartamento in vendita a Novara
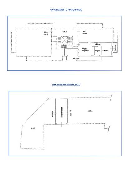
In vendita a Novara, nel quartiere Cittadella-Torrion Quartara, in zona ben collegata con i mezzi pubblici e i servizi commerciali, proponiamo un accogliente appartamento di recente costruzione (anno 2011). L'immobile, di circa 45 metri quadrati, è composto da due locali luminosi e ben distribuiti, perfetti per una coppia o una persona singola. Il punto forte di questa soluzione è la presenza di un grande terrazzo coperto. Ideale per chi cerca una casa pronta all'uso, senza dover affrontare lavori di ristrutturazione, si presta anche come ottima opportunità di investimento o come soluzione ideale per la propria prima casa. Insieme all'appartamento, compreso nel prezzo, è venduto un comodo box singolo al piano interrato.
Dove si trova
Informazioni generali
Accessori
Efficienza energetica
Planimetria
Video
Richiesta informazioni all'agenzia
Richiedi informazioni all'agenzia
