Appartamento indipendente in nuova costruzione a Olbia
Vendita Appartamento indipendente, Nuova costruzione, OLBIA
In fase di inizio lavori, si propongono appartamenti di tipologia Trilocale,
in tranquilla zona residenziale in via di sviluppo.
Il piccolo complesso, di sole 7 unità, di cui 2 completamente distaccate,
sarà composto da appartamenti con ampie verande coperte vista mare,
ognuno con ingresso indipendente.
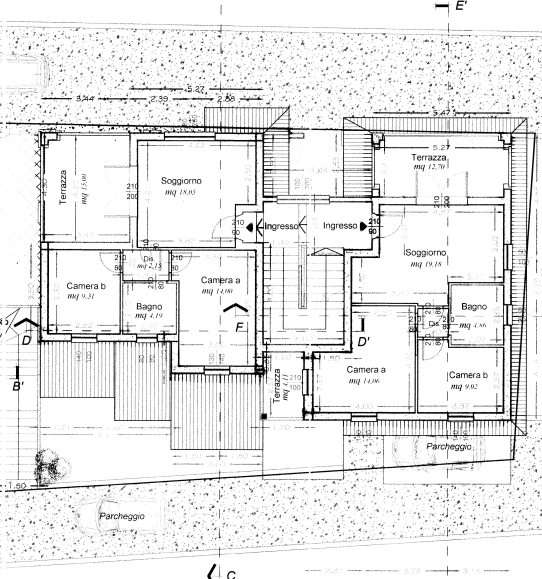
Attualmente a disposizione 2 trilocali rispettivamente a piano terra e al piano primo
così composti: Soggiorno-cucina, 2 camere da letto, bagno e veranda coperta.
Sarà possibile visionare alcuni complessi già realizzati per capire la qualità della costruzione e
le finiture che caratterizzano la tipologia.
A scopo illustrativo, si inseriscono alcune foto relative ad immobili già realizzati dallo stesso costruttore.
Gli appartamenti, saranno dotati di impianto di riscaldamento a gas e condizionatori inverter.
Ogni unità immobiliare avrà un posto auto coperto di proprietà.
Qualsiasi informazione sull'ubicazione esatta degli immobili verrà fornita in sede previo appuntamento.
Richiesta € 165'000,00
Dove si trova
Informazioni generali
Accessori
Efficienza energetica
Richiesta informazioni all'agenzia
Richiedi informazioni all'agenzia
