Villa a schiera in nuova costruzione a Olbia
AFFARE IRRIPETIBILE! PREZZO RIBASSATO! "euro 1.220,00mq
"olbia"... A pochi passi da viale aldo moro... Circondata da
importanti ville... Proponiamo villa caposchiera, in trifamiliare, con
ingresso indipendente fronte strada, di mq coperti 140 circa (mq
commerciali 204 circa), dislocata su 2 livelli abitativi (piano terra e
primo), con possibilita' di acquisto taverna al piano interrato
(metratura a scelta, da 10 mq a 150 mq). L' immobile, al suo interno,
risulta essere composto da:
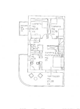
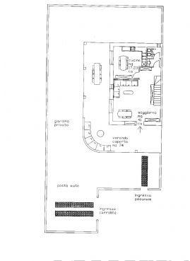
Ampio soggiorno di mq 41 circa, cucina separata abitabile di mq 17
circa, n° 3 servizi igienici (uno nella camera padronale), n° 3 camere
letto (1 matrimoniale e 2 doppie), ripostiglio. Giardino provato su 3
lati l'immobile. Al piano terra ampio porticato di mq 74 circa. Al
piano superiore, invece, ampio terrazzo con copertura in legno a
vista.
Ancora personalizzabile nella scelta di pavimenti, placcaggi, colori
infissi etc. Tempi di consegna stimati in circa 2 mesi dalla data di
acquisto (compromesso) per l'ultimazione lavori.
Impianti di riscaldamento autonomo a gas piu' predisposizione pompe
di calore.
Presumibilmente classe energetica "c".
Prezzo di vendita pari ad euro 250.000,00.
Maggiori informazioni in merito all'ubicazione ed altro verranno
fornite solo ed esclusivamente presso la ns sed previo appuntamento
Dove si trova
Informazioni generali
Accessori
Efficienza energetica
Richiesta informazioni all'agenzia
Richiedi informazioni all'agenzia
