Capannone industriale abitabile a Torreglia
vendita Capannone Industriale Torreglia
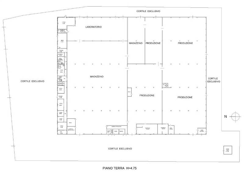
Proponiamo un moderno immobile industriale perfetto per le vostre attività produttive e direzionali, situato in una posizione privilegiata nel cuore della zona industriale/artigianale di Torreglia. Con una vasta superficie coperta di 8.301 mq e un’area produttiva di circa 7.807 mq, questa proprietà è pronta a soddisfare le esigenze delle aziende più dinamiche!
Punti di forza:
Struttura Solida: Costruzione in calcestruzzo armato con pannelli di calcestruzzo nervati e laterizio, che garantiscono robustezza e affidabilità nel tempo.
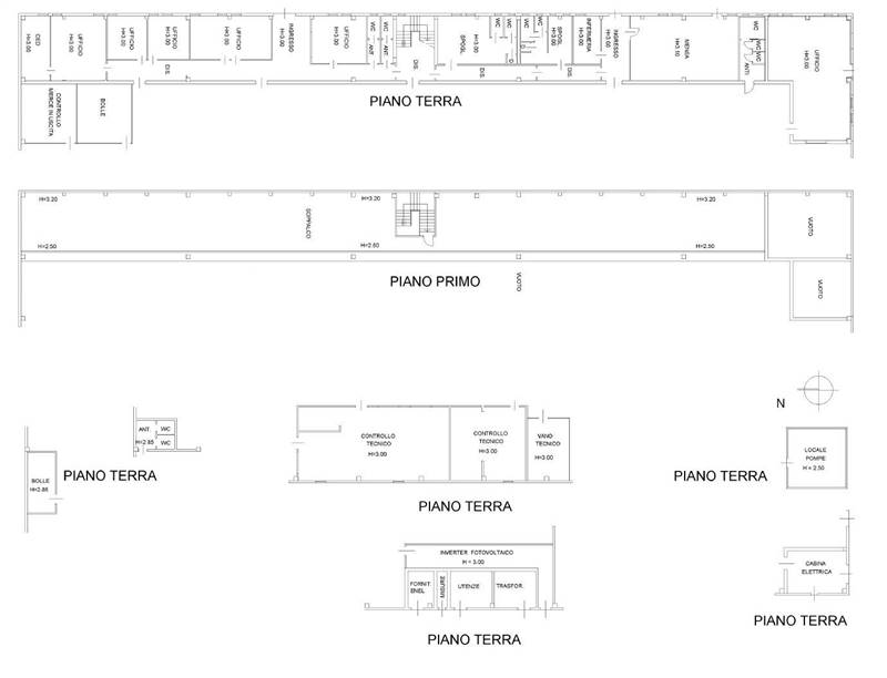
Impiantistica Avanzata: Dotato di impianti all’avanguardia, conformi alle normative più recenti (L. 46/90), con cabine per la trasformazione dell’energia elettrica per massimizzare l’efficienza operativa.
Rinnovato di Recente: Completamente ristrutturato nel 2010, con copertura rifatta in lamiera di alluminio coibentata e l'installazione di ben 3.300 mq di pannelli fotovoltaici per la produzione e vendita di energia.
Spazi Funzionali: Dispone di 494 mq dedicati a uffici moderni, spogliatoi, mensa e ambulatorio, distribuiti su due piani, offrendo comfort e praticità a tutto lo staff.
Ampi Spazi Esterni: L’area scoperta di 11.096 mq comprende parcheggi, viabilità interna e spazi verdi. Perfetta per facilitare la logistica e valorizzare l’ambiente circostante.
Dettagli Extra:
Pavimentazione in cemento lisciato nelle aree produttive, mentre gli uffici presentano eleganti pavimenti piastrellati.
Serramenti in alluminio con vetrocamera negli uffici, e infissi metallici protetti da rete anticaduta nella zona produttiva.
Ottima esposizione e accessibilità, garantendo un facile accesso e massima visibilità.
Questa proprietà rappresenta un’opportunità unica per chi cerca una soluzione industriale efficiente, moderna e rispettosa dell’ambiente. Non lasciartela sfuggire! Contattaci subito per ricevere maggiori dettagli e fissare una visita.
