Locale commerciale abitabile a San Martino di Lupari
vendita Locale Commerciale San Martino di Lupari
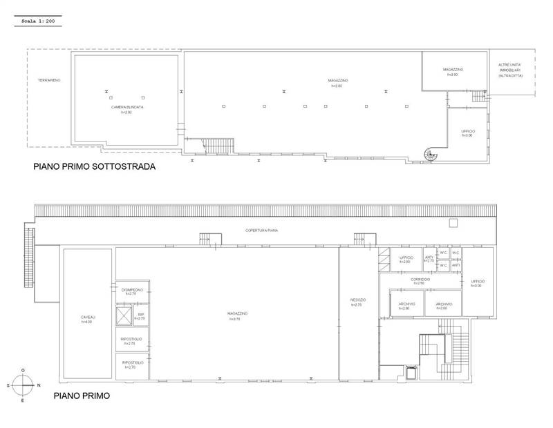
Proponiamo in vendita capannone ad uso produttivo-commerciale con annessa abitazione. L'unità si distribuisce su tre piani: al piano terra è presente un ampio locale ad uso laboratorio di pellicceria, corredato da locale essiccatoio, spogliatoi, magazzini e ripostigli, oltre a servizi igienici, al piano primo si trova un ampio magazzino con negozio, uffici, archivi e un caveau, al piano interrato un ampio magazzino oltre ripostigli e una camera blindata. Al piano terra, tramite il disimpegno comune, si ha accesso all'abitazione composta da un locale cucina-pranzo, una camera e un bagno. L'immobile sorge nella zona industriale del comune di San Martino di Lupari in provincia di Padova.
