Negozio in Via Ungaretti a Tombolo
38 m2
1 vano
1 bagno
€ 60.000
Negozio in centro a TOMBOLO (PD)
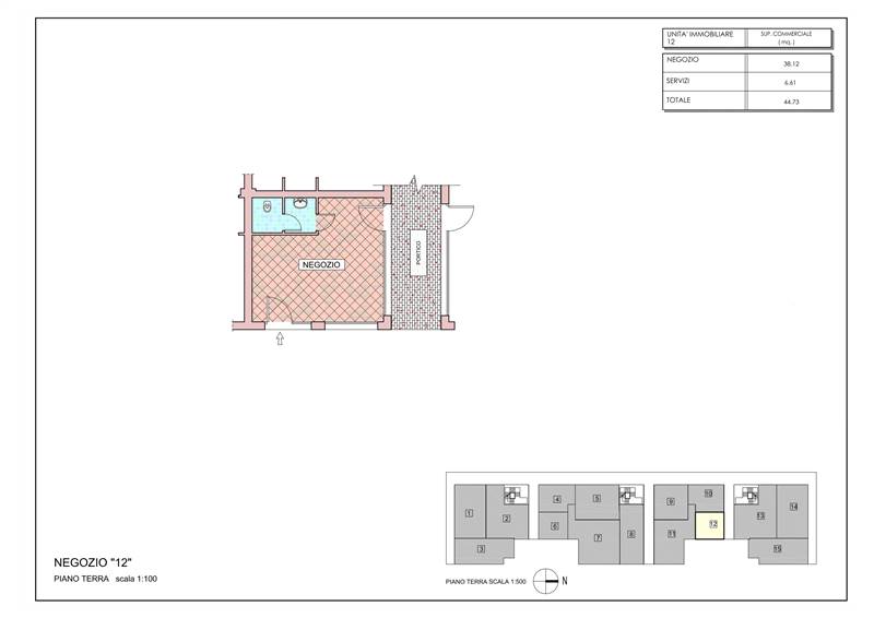
VENDESI negozio/ufficio al piano terra TOMBOLO CENTRO (PD) da 45mq quasi nuovo composto con zona open space, antibagno e bagno. Impianto in pompa di calore riscaldamento/raffrescamento installato. Ampi parcheggi adiacenti. Eleganti finiture marmoree. Classe energetica in fase di attestazione.
Negozio situato in centro con tutti i servizi primari adiacenti: municipio, poste, fermato BUS, supermercato, bar, parrucchiera, gelateria, estetica, tabaccheria, farmacia, assicurazioni, pratiche auto
VENDITA DIRETTA
NESSUNA PROVVIGIONE
Renato
337-498489
RIF NEG 12
Dove si trova
45.6492711.82433
Informazioni generali
neg12
38 m2
1 locali
€ 60.000
Vendita
Negozio
Tombolo
VIA UNGARETTI
€ 300 (all'anno)
Civile
29/05/2023
Accessori
1
Terra, senza ascensore
Autonomo
Ottime
si
Richiesta informazioni all'agenzia
Richiedi informazioni all'agenzia
costruzioni san piero sas
Via Zanella 22a
35012
Camposampiero
(PD)
P.IVA: 02682470287
