Appartamento in zona Montepellegrino a Palermo
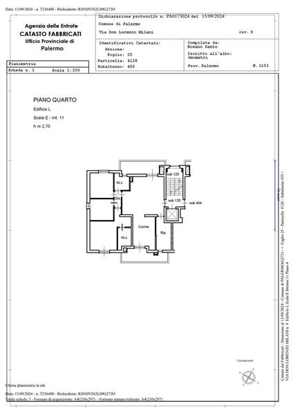
**Appartamento in Vendita - Nuova Costruzione zona Villa Igiea /ArenellaAppartamento di nuova costruzione, situato al quarto piano di un elegante edificio con ascensore. Con una superficie commerciale di 143 m², questo immobile offre un ampio salone di due vani, tre camere da letto spaziose e un ampia cucina abitabile. Inoltre, l'appartamento dispone di due bagni ben progettati e un pratico ripostiglio. Il riscaldamento autonomo e la predisposizione per l'aria condizionata assicurano un ambiente sempre piacevole, inoltre dispone di un posto auto assegnato coperto e il giardino condominiale, perfetto per rilassarsi all'aperto. Costruito nel 2024 questo appartamento è dotato di classe energetica A, con un consumo energetico ridotto. Non perdere l'opportunità di vivere in un contesto moderno e funzionale! Contattaci per maggiori informazioni e per prenotare una visita!
