Trilocale in Via Verdi a Terrasini

60 m2
3 vani
2 camere
1 bagno
box
ascensore
Tratt. riservata
Foto Foto
Foto Foto
Foto Foto
Foto Foto
Foto Foto

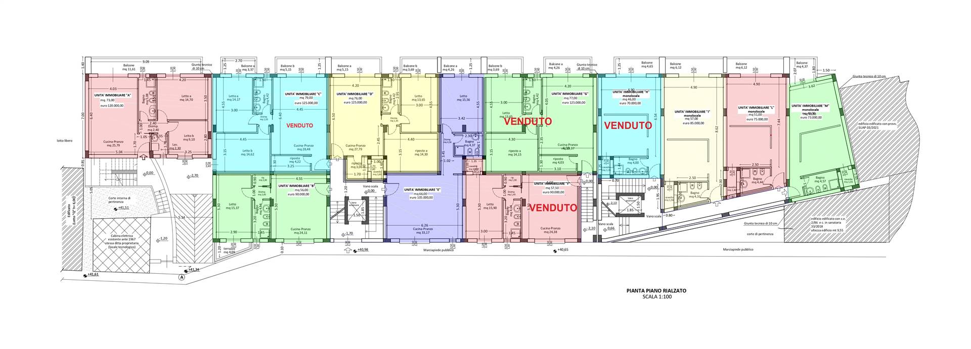
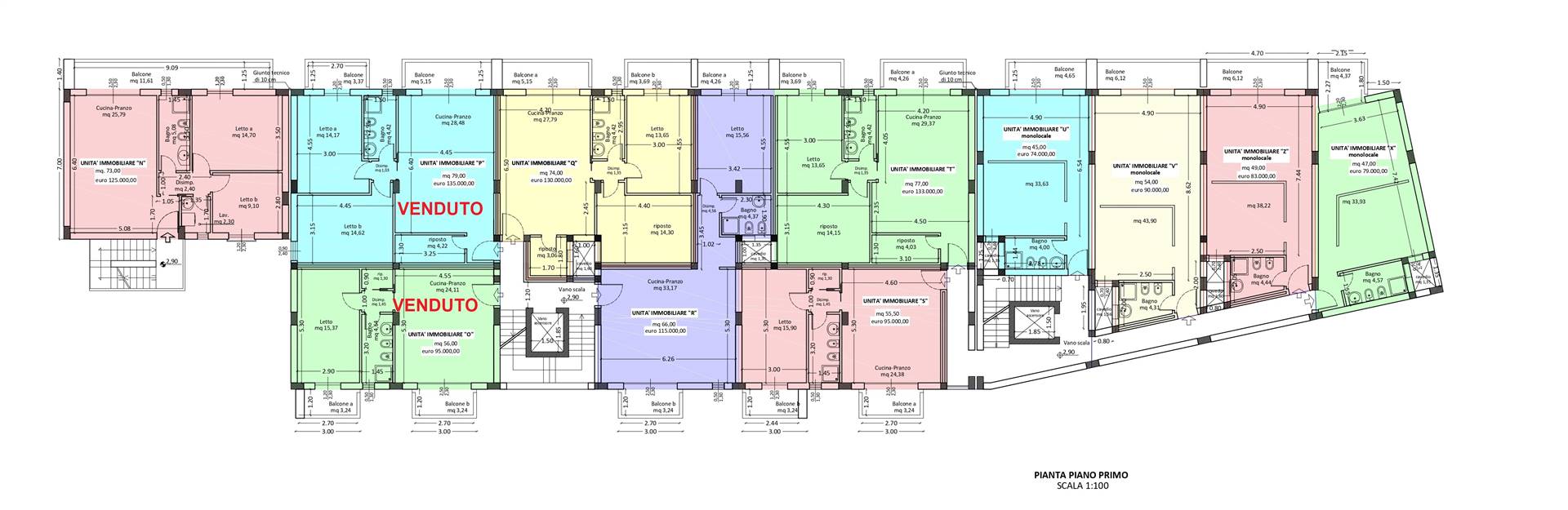
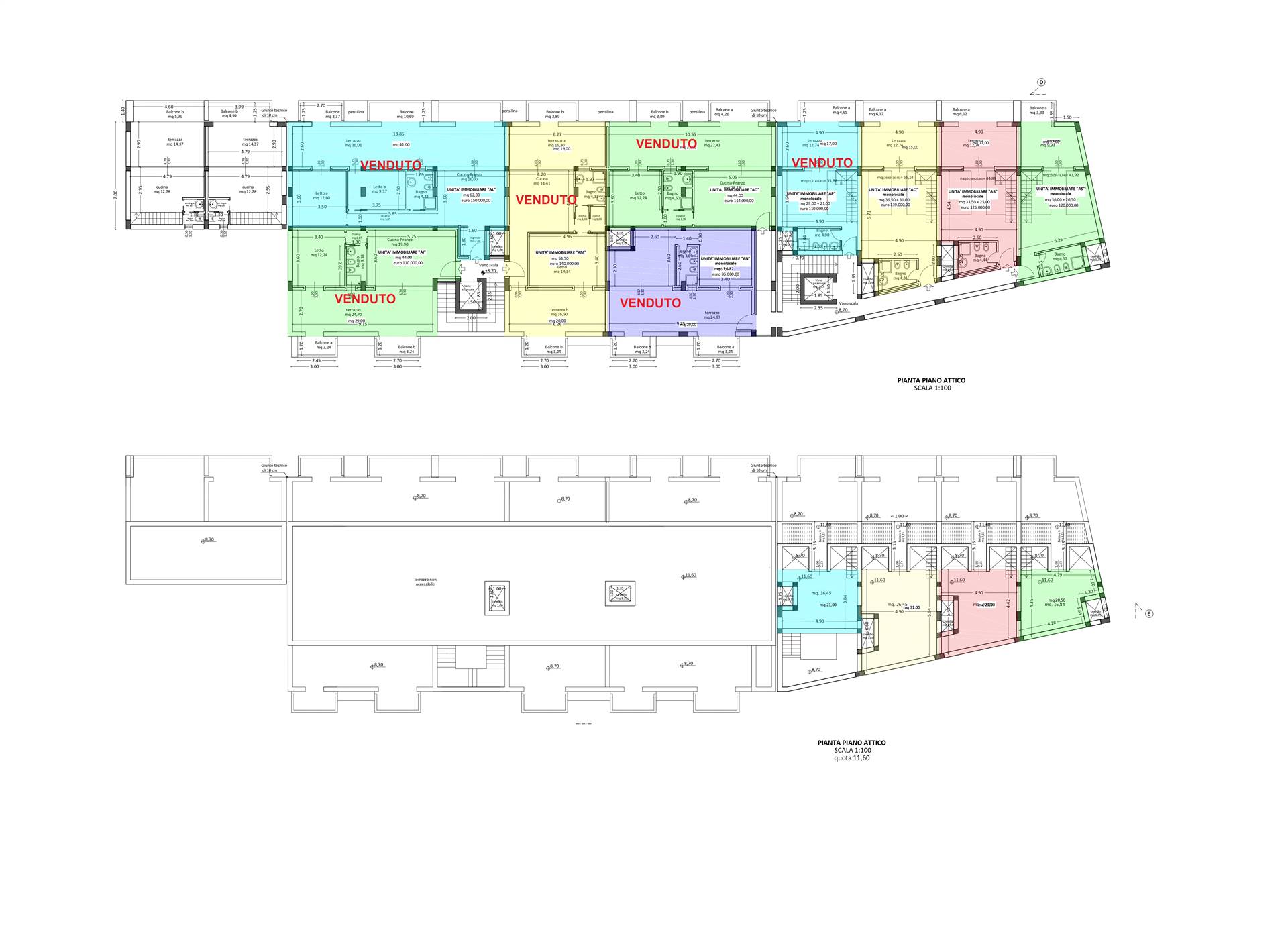
A Terrasini in via Verdi, vicino al centro abitato, in una zona ben servita di scuole, supermercati e vicino l'imbocco autostradale proponiamo la vendita esclusiva di appartamenti di nuova costruzione. Le soluzioni che proponiamo sono di vari tagli e composizioni che vi consente di trovare la casa su misura per voi. Essendo una nuova costruzione può essere personalizzabile secondo i vostri gusti ed esigenze, grazie ad un'accurata progettazione e all'impiego di tecnologie e materiali orientate al risparmio energetico. La palazzina è composta da quattro piani fuori terra, dotata di ascensore. Presente anche la zona seminterrata adibita a box e cantine di diversi tagli. Al piano rialzato, primo e secondo troviamo appartamenti con balconi, al terzo piano appartamenti che si sviluppano su due livelli con terrazzo e al piano attico cinque appartamenti con diversa predisposizione su un unico livello con terrazzo. Inoltre vi è la possibilità di acquistare box, cantine e posto auto a partire. Gli appartamenti dispongono di impianto di riscaldamento autonomo, infissi in PVC e vetro camera. Tutti i prezzi indicati sono al netto di IVA di legge. Inizio lavori Gennaio 2024. Per maggiori informazioni vieni trovarci in agenzia

Dove si trova

38.1469713.08346

Informazioni generali

18
60 m2
3 locali
Trattativa
Vendita
Appartamento
Terrasini
via verdi
Medio Signorile
Libero
18/10/2023

Accessori

1
2
Autonomo
Nuova costruzione
Abitabile

Richiesta informazioni all'agenzia

Logo agenzia

DOMUS IMMOBILIARE DI GIANNOLA VITO

corso umbertto 433
Cinisi (PA)

Autorizzazione al trattamento dei dati personali (Mostra)
Dichiaro di aver letto l'informativa sul trattamento dei dati personali e autorizzo espressamente BasicSoft S.r.l. gestore di RisorseImmobiliari.it al trattamento dei dati da me forniti. Accetto inoltre che i dati sopra inseriti siano trasmessi alle agenzie immobiliari interessate per essere da loro ricontattato. BasicSoft S.r.l. declina ogni responsabilità riguardo al trattamento di tali dati da parte delle agenzie immobiliari.
*) Riempire tutti i campi contrassegnati. Almeno uno dei campi telefono e/o cellulare devono essere riempiti
Contatta
RisorseImmobiliari.it © Copyright 2025 - Tutti i diritti sono riservati BasicSoft S.r.l. | C.F./P.IVA: 05269090485 | Reg. Imprese di Firenze | Cap.Soc. Euro 10.330,00 I.V.