Capannone industriale in zona Parma Centro a Parma
Capannone / Fondo - Industriale/Artigianale a Parma, Parma
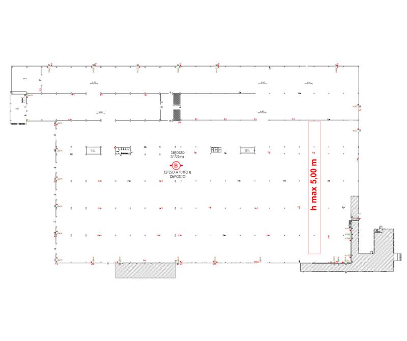
Capannone a Lentigione Parma Nord
Il complesso immobiliare è composto da due unità di complessivi 29.140mq circa su un lotto di 83.500mq circa, disponibile edificabilità residua.
L'unità più grande di 20.000mq circa ha una altezza di 10m e si distribuisce su cinque campate; l'unità più piccola di 8.100mq ha una altezza di 12m distribuita su due campate.
Blocco uffici e servizi con spogliatoi con annesso locale mensa di 400mq circa.
Tettoia di 240mq e portico di 400mq per movimentazione al coperto.
Presenti nelle varie campate n.34 carriponte.
Area esterna per movimentazione: sul retro 35.000mq circa; ai lati e sul fronte 18.700mq circa.
Progetto approvato per la realizzazione di 4 baie di carico doppie sul lato nord del complesso.
A disposizione in base alle esigenze: una palazzina con uffici direzionali, archivi e servizi di complessivi 1.800mq circa distribuita su due piani da 900mq a piano.
Rif. 1795
Per informazioni:
Immobili Parma Srls, Via Giovanni Giolitti 2/A, 43126 Parma, Tel. 05211962370, info@immobiliaziendali.eu
IMPORTANTE: l’effettivo stato dell’immobile potrebbe in alcuni casi discostarsi dalle caratteristiche tecniche, dalla disposizione interna e gli accessori indicati in annuncio. I portali possono pubblicare dati differenti pertanto la società Immobili Parma Srls declina ogni responsabilità per possibili incongruenze.
Precisiamo inoltre che l’indirizzo pubblicato è indicativo al fine di tutelare la privacy del venditore. L’indirizzo corretto verrà comunicato previo incontro presso la nostra sede....
