Capannone industriale in zona Parma Centro a Parma
Capannone / Fondo - Industriale/Artigianale a Parma, Parma
Capannone a Lentigione Parma Nord
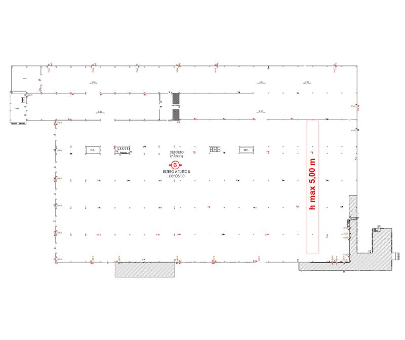
Il complesso immobiliare è composto da un capannone di complessivi 20.000mq circa su un lotto di 83.500mq circa, disponibile edificabilità residua.
L'altezza dell'immobile è di 10m e si distribuisce su cinque campate con tettoia di 240mq e portico di 400mq per movimentazione al coperto.
Blocco uffici con servizi e spogliatoi e locale mensa di 400mq circa.
Presenti carriponte nelle varie campate.
Area esterna per movimentazione: sul retro 35.000mq circa; ai lati e sul fronte 18.700mq circa.
Progetto approvato per la realizzazione di 4 baie di carico doppie sul lato nord del complesso.
Rif. 1794
Per informazioni:
Immobili Parma Srls, Via Giovanni Giolitti 2/A, 43126 Parma, Tel. 05211962370, info@immobiliaziendali.eu
IMPORTANTE: l’effettivo stato dell’immobile potrebbe in alcuni casi discostarsi dalle caratteristiche tecniche, dalla disposizione interna e gli accessori indicati in annuncio. I portali possono pubblicare dati differenti pertanto la società Immobili Parma Srls declina ogni responsabilità per possibili incongruenze.
Precisiamo inoltre che l’indirizzo pubblicato è indicativo al fine di tutelare la privacy del venditore. L’indirizzo corretto verrà comunicato previo incontro presso la nostra sede....
