Capannone industriale in zona Parma Centro a Parma
Capannone / Fondo - Industriale/Artigianale a Parma, Parma
Capannone in affitto allo SPIP
L’immobile è situato all’interno del comparto industriale SPIP di Parma, in posizione strategica grazie alla vicinanza alla Tangenziale e al casello autostradale A1.
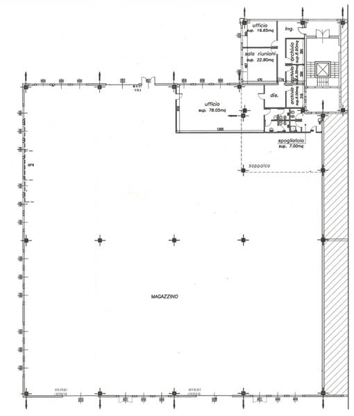
La superficie complessiva è di circa 1.900mq ed è così articolata:
Magazzino di circa 1.623mq, completo di spogliatoi e servizi;
Uffici interni al capannone per circa 81mq;
Soppalco di circa 90mq;
Ulteriori uffici e aree deposito per circa 106mq, direttamente accessibili dall’esterno.
Riscaldati e raffrescati gli uffici.
Il capannone è composto da quattro campate con pilastri senza mensola e presenta altezze interne di circa 7,00m sotto trave e 10,00m circa complessivi.
L’immobile è dotato di tre portoni carrabili, di cui uno affacciato su una zona coperta con tettoia, ideale per le operazioni di carico e scarico merci.
Grazie alla presenza di ampie finestrature, l’immobile si presta sia a un utilizzo logistico/magazzino sia a uso produttivo.
Disponibile da giugno 2026.
Rif. 1840
Per informazioni:
Immobili Parma Srls, Via Giovanni Giolitti 2/A, 43126 Parma, Tel. 05211962370, info@immobiliaziendali.eu
www.immobiliaziendali.eu
IMPORTANTE: l’effettivo stato dell’immobile potrebbe in alcuni casi discostarsi dalle caratteristiche tecniche, dalla disposizione interna e gli accessori indicati in annuncio. I portali possono pubblicare dati differenti, pertanto, la società Immobili Parma Srls declina ogni responsabilità per possibili incongruenze.
Precisiamo inoltre che l’indirizzo pubblicato è indicativo al fine di tutelare la privacy del venditore. L’indirizzo corretto verrà comunicato previo incontro presso la nostra sede.
...
