Negozio in zona Parma Centro a Parma
Locale commerciale - 2 Vetrine a Parma, Parma
Locale commerciale Parma centro_no ZTL
Collocato nella cerchia delle tangenziali interne alla città ha, al contorno, aree parcheggio con pagamento a tempo e sosta libera oltre le 19.00.
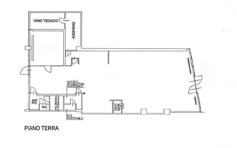
L'unità immobiliare di 300mq circa consiste in un ampio open space, un vano, locali deposito e servizi.
Presenta due accessi contrapposti. Altezza interna di 3.00m.
Adatta per attività di ristorazione, commercio di prodotti per la casa e servizi.
Rif. 1783
Per informazioni:
Immobili Parma Srls, Via Giovanni Giolitti 2/A, 43126 Parma, Tel. 05211962370, info@immobiliaziendali.eu
IMPORTANTE: l’effettivo stato dell’immobile potrebbe in alcuni casi discostarsi dalle caratteristiche tecniche, dalla disposizione interna e gli accessori indicati in annuncio. I portali possono pubblicare dati differenti pertanto la società Immobili Parma Srls declina ogni responsabilità per possibili incongruenze.
Precisiamo inoltre che l’indirizzo pubblicato è indicativo al fine di tutelare la privacy del venditore. L’indirizzo corretto verrà comunicato previo incontro presso la nostra sede....
