Appartamento abitabile a Parma
256 m2
5 vani
3 camere
2 bagni
box
€ 250.000
Appartamento - 3 camere a Parma
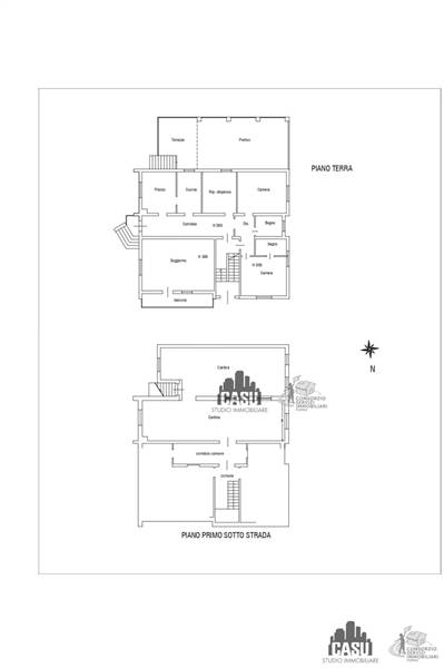
SALA BAGANZA vendesi in casa bifamiliare anni '60, appartamento composto da ingresso, soggiorno, cucina, sala pranzo, 3 camere, doppi servizi, balconi, portico, terrazzo, ampie cantine, giardino 830 mq, box auto esterno. Termoautonomo. Buono stato manutentivo, Classe energetica "G". Prezzo €. 250.000. Rif. CIA 244. Tel. 335.470005 - 335.8037919...
Dove si trova
Informazioni generali
CIA244
256 m2
5 locali
€ 250.000
Vendita
Appartamento
Parma
Medio Signorile
1965
13/01/2026
Accessori
2 (Finestrati)
3 (2 matrimoniali, 1 doppia)
Terra, senza ascensore
Abitabile
Abitabile
830 mq
si
si
si
Efficienza energetica
G
G
314 kwh/m2 anno
Richiesta informazioni all'agenzia
Richiedi informazioni all'agenzia
Casu Piersanto
via Massimo D'Azeglio 42/a
43125
Parma
(PR)
P.IVA: 00759290349
