Capannone industriale in zona Parma Centro a Parma
Capannone / Fondo - Industriale/Artigianale a Parma, Parma
Capannone in zona sud
Posizionato sulla direttrice della strada Pedemontana est.
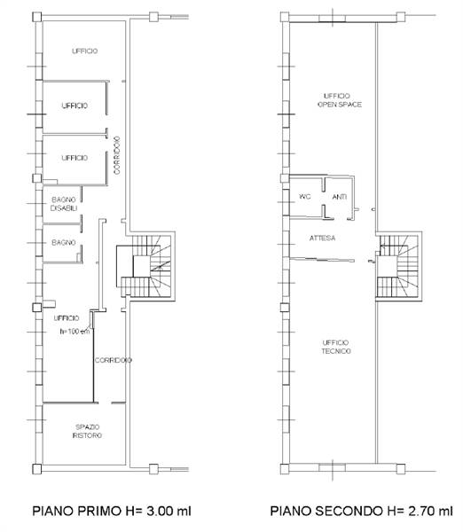
Capannone di 1.975mq circa di cui:1.475mq circa di capannone con servizi e spogliatoi e 500mq circa di uffici su tre piani.
Il capannone ha una unica campata di h 9.00m con solaio portante di copertura, è dotato di carroponte con portata di 5t.
L'interno è molto luminoso con ampie finestrature e portoni carrabili.
Area cortiliva di pertinenza.
Riscaldato il capannone, riscaldati e raffrescati gli uffici.
Rif. 1804
Per informazioni:
Immobili Parma Srls, Via Giovanni Giolitti 2/A, 43126 Parma, Tel. 05211962370, info@immobiliaziendali.eu
IMPORTANTE: l’effettivo stato dell’immobile potrebbe in alcuni casi discostarsi dalle caratteristiche tecniche, dalla disposizione interna e gli accessori indicati in annuncio. I portali possono pubblicare dati differenti pertanto la società Immobili Parma Srls declina ogni responsabilità per possibili incongruenze.
Precisiamo inoltre che l’indirizzo pubblicato è indicativo al fine di tutelare la privacy del venditore. L’indirizzo corretto verrà comunicato previo incontro presso la nostra sede.
...
