Capannone industriale in zona Parma Centro a Parma
Capannone / Fondo - Industriale/Artigianale a Parma, Parma
Capannone in zona sud
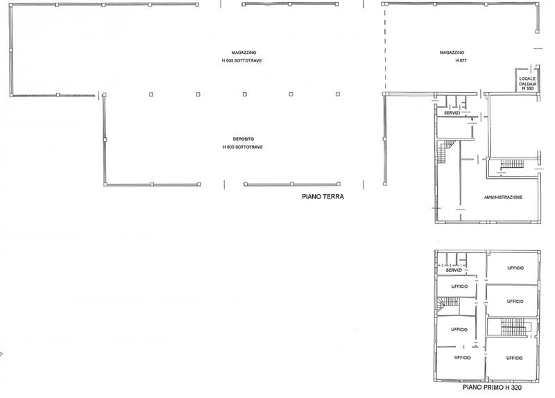
Il capannone è collocato su una direttrice primaria ed è di 1.916mq circa di cui:1.241mq circa di capannone; 397mq circa di uffici e servizi; 225mq circa di due alloggi e 53mq circa di due autorimesse.
Il capannone ha due campate con altezza sotto trave di h 6.00m, la campata più lunga è dotata di carroponte con portata di 2t. In copertura impianto fotovoltaico da 35kw.
L'interno è molto luminoso con ampie finestrature e portoni carrabili.
Riscaldato il capannone, riscaldati e raffrescati gli uffici.
Addossata al capannone la palazzina uffici/abitazioni su tre piani.
Rif. 1803
Per informazioni:
Immobili Parma Srls, Via Giovanni Giolitti 2/A, 43126 Parma, Tel. 05211962370, info@immobiliaziendali.eu
IMPORTANTE: l’effettivo stato dell’immobile potrebbe in alcuni casi discostarsi dalle caratteristiche tecniche, dalla disposizione interna e gli accessori indicati in annuncio. I portali possono pubblicare dati differenti pertanto la società Immobili Parma Srls declina ogni responsabilità per possibili incongruenze.
Precisiamo inoltre che l’indirizzo pubblicato è indicativo al fine di tutelare la privacy del venditore. L’indirizzo corretto verrà comunicato previo incontro presso la nostra sede.
...
