Magazzino abitabile in zona Pontetaro a Fontevivo
12000 m2
1 vano
€ 1.600.000
Capannone / Fondo - Magazzino a Pontetaro, Fontevivo
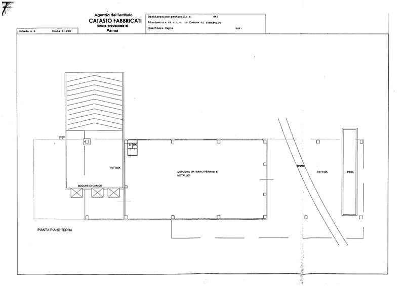
Complesso costituito da 2 fabbricati non comunicanti tra loro, disposti su di un lotto di terreno di 15.500 mq. Sull’area esterna è ubicato un piccolo fabbricato per la manutenzione dei mezzi (50 mq).
Il fabbricato 1 è caratterizzato da struttura in c.a.p. in travi e pilastri, tettoia, pareti di divisione e uffici.
Il fabbricato 2 è caratterizzato da una ridotta superficie, tettoie più ampie dell'altro fabbricato e dall'assenza di uffici.
Collocato a circa 10 km di distanza da PARMA OVEST. Immobile a REDDITO. Per maggiori informazioni contattare ANTECASA 329.6425816 www.consorzioparma.it
Dove si trova
Informazioni generali
ANCP06
12000 m2
1 locali
€ 1.600.000
Vendita
Magazzino
Fontevivo
Pontetaro
Medio Signorile
20/12/2022
Accessori
Terra, senza ascensore
Abitabile
si
Efficienza energetica
D
D
Planimetrie
Richiesta informazioni all'agenzia
Richiedi informazioni all'agenzia
Ante Casa Immobiliare di Salvatore Rosato
Via Verdi 27
43121
Parma
(PR)
P.IVA: 02272650348
